Eine 1993 für eine einzelne Firma erbaute Liegenschaft an der Industriestrasse 24 in Dietlikon wurde von der AXA Anlagestiftung strategisch neu positioniert. Taktyk Paris gestaltete dafür ein Streetscape und den Dachgarten im Gesamtkonzept der OOS AG. DGJ Landscapes unterstützte die erste Schweizer Realisierung unserer Pariser Kolleg:innen als lokaler Partner von taktyk und als Fachbauleiter Landschaftsarchitektur vor Ort.
Das neu konzipierte Büro- und Gewerbehaus KOWERK ist originell und flexibel auf KMU-Bedürfnisse abgestimmt inmitten des neu gestalteten Einkaufsgebiets Dietlikon. Es bietet alles, was von einem Mehrnutzer-Gebäude erwünscht wird. Etablierte und Startups finden hier flexible Flächen von 10 m² bis 6‘621 m². Der spannende Nutzermix sowie der moderne Ausbau machen KOWERK zu einem einzigartigen und attraktiven Firmenstandort. Ideal gelegen vor den Toren Zürichs, unweit des Flughafens und des neuen Innovationsparks Dübendorf, mit 2 S-Bahn Verbindungen 12 Minuten vom Zürcher Hauptbahnhof.
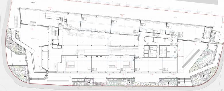
Die Landschafarchitekten Taktyk Paris haben die vorhin abweisende Umgebung in eine Strassen-Landschaft aus bunt gemischten Stauden, Kleingehölzen und Bäumen umgestaltet. Die Höhenunterschiede werden durch Rampen neu hindernisfrei gemacht. Helle, farbige Beläge aus geschliffenem Gussasphalt verbinden die Fussgängerstreifen mit den auffällig grünen KOWERK-Portalen Ost und West. An der langen Südfassade führt ein Fussweg den Ladenfronten entlang. Das frische Grün findet seinen Höhepunkt im auch unter DGJs Fachbauleitung ausgeführten Dachgarten im 6.OG.
KOWERK
Voltar à lista de projetos- Localização
- Industriestrasse 24, 8305 Dietlikon bei Zürich, Suíça
- Ano
- 2023
- Cliente
- AXA Anlagestiftung
- Architekt
- OOS AG
- Landschaftsarchitekt Entwurf
- taktyk















