Neubau LEA - Logistikzentrum Esseareal
Bauprojekt für ein Logistikzentrum der SBB auf dem Esseareal beim Bahnhof Winterthur.
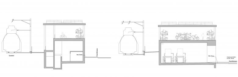
Dieses beinhaltet im Sockelgeschoss die Entsorgung der Personenunterführung mit direktem Tunnel an die PU Nord und im Obergeschoss ein öffentliches Veloparking der Stadt Winterthur mit 570 Plätzen.
https://www.amplatz.ch/lea-winterthur
- Ano
- 2018 - 2022
- Cliente
- Schweizerische Bundesbahnen SBB, Stadt Winterthur
- Planerwahlverfahren
- 2018
- Generalplanung
- B3 Brühwiler AG
- Landschaftsarchitektur
- Mettler Landschaftsarchitektur
- Aufgabe
- Logistikzentrum und öffentliches Veloparking









