Erweiterungsbau B, Fraunhofer-Institut für Integrierte Systeme und Bauelementetechnologie (IISB) Erlangen
Erlangen, Duitsland
Mit der Ergänzung um den Erweiterungsbau B vergrößert sich das Fraunhofer IISB um Labore, Arbeitsräume und Büros für die Forschungs- u. Entwicklungsschwerpunkte Leistungselektronik, Batterietechnologie und Elektromobilität.
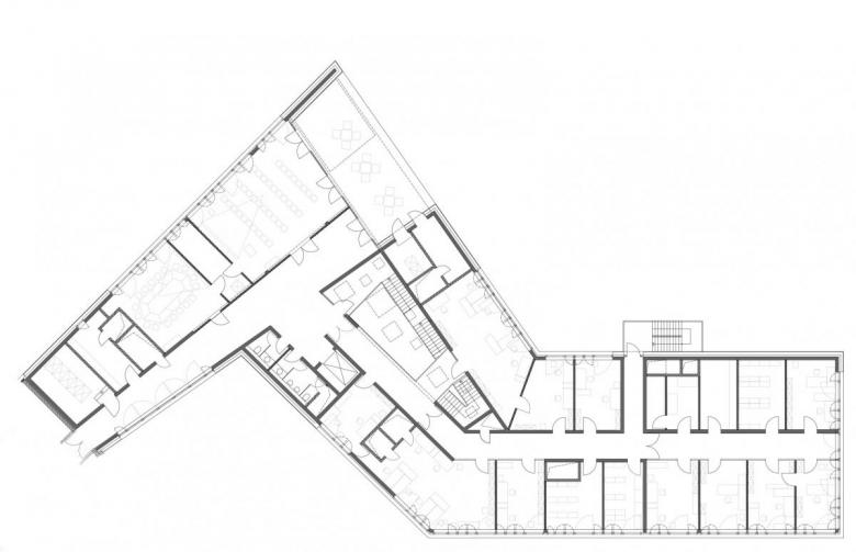
Der Erweiterungsbau bezieht sich mit seinem Z-förmigen Grundriss auf die Gebäudefluchten der bestehenden Institutsbauten und verbindet die Bestandsbauten mit der angrenzenden Erschließungsstraße. In Ausnutzung des topografischen Höhenversprungs auf dem Gelände wird für den Forschungsbereich Hochspannungs-Gleichstrom-Übertragung (HGÜ) eine mehrgeschossige Halle einschließlich eines Technikums im UG bereitgestellt. Die Labore und Arbeitsräume binden sich ebenengleich an funktionsgleiche Räume im Bestand im EG und OG. Mit 2 Besprechungsräumen in unterschiedlichen Größen werden die Büroflächen des Erweiterungsbaus B und des angrenzenden Erweiterungsbaus A ergänzt.
Das zentrale Treppenhaus als „Herz“ des Gebäudes bindet alle Ebenen offen zusammen und schafft durch verbindende Brücken und Stege eine helle Kommunikationszone.
- Architecten
- arabzadeh.schneider.wirth
- Jaar
- 2019
Gerelateerde projecten
Magazine
-
-
-
-
Un despatx madrileny signa un visionari catalitzador urbà en West Palm Beach
Andrea Pala | 29.11.2018 -
L'arquitectura de Francis Keré en escena en el Museu ICO de Madrid
Andrea Pala | 28.10.2018












