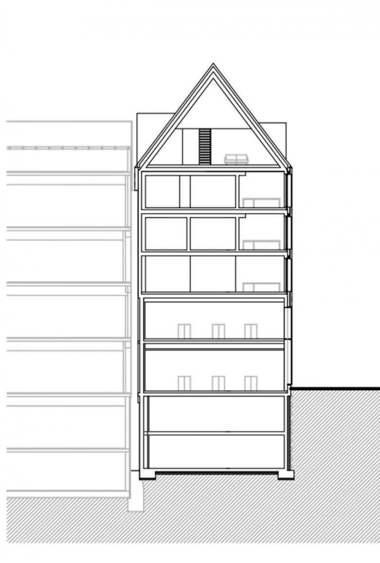
Hirschstraße 6
In der hoch frequentierten Ulmer Fußgängerzone, unweit des Ulmer Münsters, befindet sich unser Neubau eines Wohn- und Geschäftshauses. Mit der markanten Fassade aus Crailsheimer Muschelkalk haben wir ein Statement in der Hirschstraße gesetzt, das nicht nur Blickfang ist, sondern auch klare Formen in Natürlichkeit hüllt.
Ein Pendant zu diesen puren Glas- und Metallflächen setzt der Muschelkalk, der durch seine Einschlüsse und offenen Stellen lebendig wirkt. In einem spannenden Zusammenspiel dieser verschiedenen Oberflächen entsteht letztendlich eine homogene Fassadenfläche.
Das Umfeld in der Hirschstraße ist geprägt durch die Mischung verschiedener Stile und Materialien. Nach historischem Vorbild gebaut, wollten wir einen markanten städtischen Baustein setzen.
An einem Ort voller Menschen braucht es Weite. Zumindest auf den ersten Blick. Deshalb spiegelt sich in den flächenbündigen Prallscheiben der Lochfenster sowie den zweigeschossigen Schaufenstern die Umgebung wie der Himmel wider.
Die Steinlamellen vor der Treppenhausverglasung sowie einem Teil der Giebelfenster heben sich elegant und strukturiert ab und setzen so einen deutlichen Akzent – vor allem in ihrem unterschiedlichen Schattenspiel und ihrer Wirkung bei Tag und bei Nacht. Wir wünschen einen schönen Spaziergang durch die Fußgängerzone.
- Jaar
- 2014
- Klant
- ALFRED FRIEDRICH GMBH






