Mehrfamilienhaus Hardstrasse

Neuenhof, Zwitserland
Visualisierung Aussenfassade
Visualization © Nightnurse Image AG

Das Mehrfamilienhaus an der Hardstrasse ergänzt auf der noch freien Fläche die beiden 2012 - 2018 erstellten Ersatzneubauten. Innerhalb des ortsbaulichen Gesamtkonzeptes wird der Neubau in die Siedlungsstruktur eingefügt. Der neue fünfgeschossige Baukörper übernimmt die Ausrichtung und Höhen der Nachbarbauten und unterscheidet sich bewusst von den beiden turmartigen Solitärbauten an der Kapellstrasse.

Der Neubau liegt in unmittelbarer Nähe zur S-Bahnstation Neuenhof und ergänzt mit 34 2 ½ und 3 ½ Zimmerwohnungen das Angebot der bestehenden Siedlung mit mehrheitlich Familienwohnungen.

Der kompakte, optimal gedämmte Baukörper ist im Minergie A Label geplant, die Wärmeerzeugung erfolgt über eine Grundwasserwärmepumpe und die Dachfläche wird mit einer Fotovoltaikanlage ausgestattet. In der neuen Einstellhalle zahlreiche Ladestationen für die e-Mobilität angeboten.

Farb+ Materialkonzept
Drawing © ERP Architekten AG
Modell
Photo © ERP Architekten AG
Schwarzplan
Drawing © ERP Architekten AG
Grundriss
Drawing © ERP Architekten AG
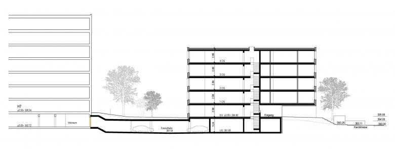
Schnitt
Drawing © ERP Architekten AG
Jaar
2021
Klant
AXA Leben AG
Landschaftsarchitekt
SKK Landschaftsarchitekten AG
Visualisierung
Nightnurse Image AG

Andere projecten van ERP Architekten AG_____ egli rohr partner 

Neubau Alterszentrum am Bach
Birmensdorf, Zwitserland
Sanierung Mehrfamilienhäuser Schützenstrasse 2-10 Dietikon
Dietikon, Zwitserland
Sanierung Wohnsiedlung Friesenberg
Zürich, Zwitserland
Siedlung Gorwiden
Zürich, Zwitserland
Erweiterung und Sanierung Kantonsschule in Sargans
Sargans