Micro Hutong
The micro-hutong is a kind of a very small-scale type of housing in the extremely dense urban conditions in the Dashilar subdistrict of the city. This subdistrict is characterized by one- to two-story structures, whose original courtyard-house character can only still be recognized quite rarely. Local and tourism uses and residential and work areas overlap. Due to unprotected usage rights and a lack of investment, along with the simultaneously high land value in walking distance of the Square of Heavenly Peace, there is a danger that the entire district will become an object of speculation.
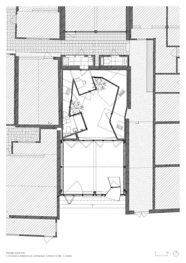
The intervention in a very small open area resulted in the creation of a hostel in a former courtyard, which also includes a multifunctional space for use by the hutong. The historical building towards the alleyway was retained and is now a flexible urban living room for the neighbourhood and users of the hostel. Internal and external uses are intertwined here, and, depending on the occasion, can be designed in an open or closed manner.
A two-storey, polygonal structure, which was poured on site with ink-coloured concrete, was created on three sides of the interior courtyard in an experimental arrangement of volumes. The concrete, which still bears traces of the formwork, contrasts with the natural wood of the floors and window frames.
The façade to the street is rather nondescript and only on a few square metres in the narrow inner courtyard the space opens up to the sky, which is reflected in the large windows of the stacked room containers. The interior world makes reference to material and space, while the urban living room is connected with the neighbourhood.
- 年
- 2016
- Project Status
- 竣工済

























