Stiftung Vivala Weinfelden
Weinfelden, スイス
Ankunft
ビジュアリゼーション © ATELIER BRUNECKY
Park
© ATELIER BRUNECKY
Beschäftigung Obergeschoss
© ATELIER BRUNECKY
Erdgeschoss
図面 © Schneider Gmür Architekten
Grundriss Beschäftigungsräume
図面 © Schneider Gmür Architekten
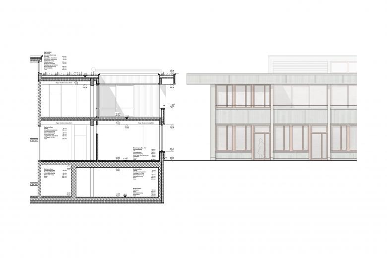
Detailschnitt Haus E
図面 © Schneider Gmür Architekten
-
年
-
2021
Zentrum Freitaghaus Wohnen für Menschen mit Demenz
Winterthur, スイス
Wohnhäuser am Rebweg
Trüllikon, スイス
Schule für cerebral gelähmte Kinder
Winterthur, スイス
Wohnüberbauung Cresta Park
Zürich Wollishofen, スイス
Instandsetzung und Umnutzung Suchtfachklinik Zürich
Zürich, スイス