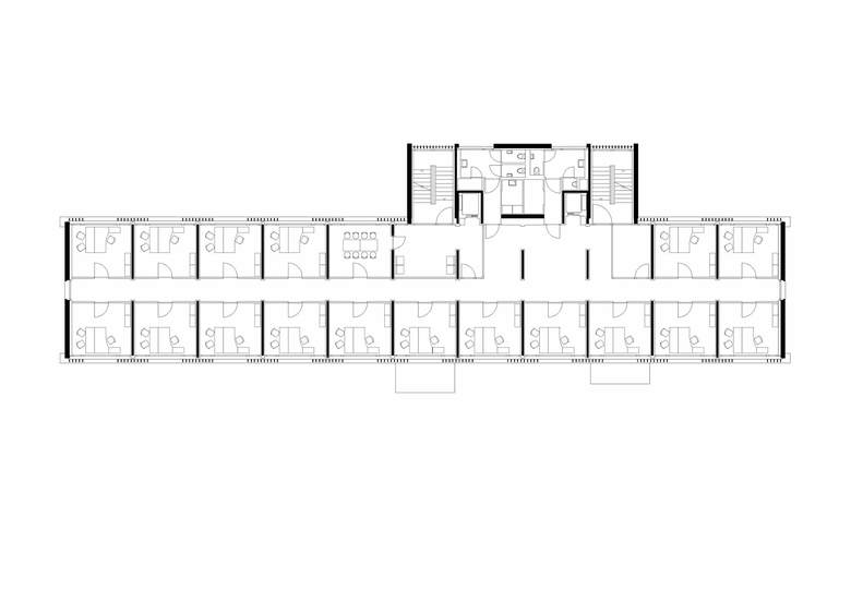
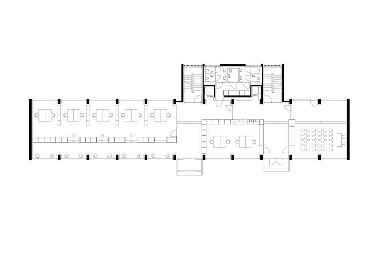
Stabile Amministrativo

Via Trevano 69, Lugano, スイス
2019
Project Status
竣工済
クライエント
Sezione della Logistica, Repubblica e Cantone Ticino
チーム
Aldo Nolli, Pia Durisch, Alfredo Mazzieri, Jacopo Laffranchini
Ingegnere Civile
Lurati Muttoni Partner
Ingegnere RCVS
Tecnoprogetti SA
Ingegnere Elettrico
Erisel SA

Durisch + Nolli Architetti によるその他のプロジェクト 

FHZGR Fachhochschulzentrum Graubünden
Coira, スイス
Loft B
Riva San Vitale, スイス
Kloster S. Maria Assunta
Claro, スイス
Verwaltungszentrum VBS Bern
Bern, スイス
SAMS STA Chiasso
Chiasso, スイス