Canyon House

Los Angeles, アメリカ
写真 © Brian Thomas Jones

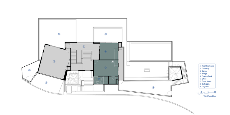
The site for this 4000 sf residence consists of a steep descending hillside property within the Hollywood Hills. Constructed adjacent to the street to permit access to the foyer and garage, the home’s entry experience is developed to screen the courtyard and stair hall from passing automobile lights and noise. In contrast, and due to the potential for panoramic views of Los Angeles and the adjacent Runyon Canyon and Wattles Canyon Parks, our design approach focused on creating transparency at the rear of the home with fixed and operable floor to ceiling glazing, opening the entire home to the environment.

In addition, the middle level of the home is open to create semi-autonomous, but connected living spaces. The main stair core was configured as a "stair room" that mediates the three floors of the house. This room is fitted with varying scales and dimensions of stairs, display areas, and materials to enrich the experience and to present the stair as a sculptural element within the center of the home. The triple height stair core, in conjunction with strategically located operable windows and skylights, acts to naturally ventilate the residence, and provide access to all floors.

The terraces and gardens encircling the home were also designed to complement the interiors. Travertine was installed within the interior and exterior to create a natural transition between the environments. The entry garden is framed and incorporated within the stair experience.

写真 © Brian Thomas Jones
写真 © Brian Thomas Jones
写真 © Brian Thomas Jones
写真 © Brian Thomas Jones
写真 © Brian Thomas Jones
写真 © Brian Thomas Jones
写真 © Brian Thomas Jones
写真 © Brian Thomas Jones
写真 © Brian Thomas Jones
写真 © Brian Thomas Jones
写真 © Brian Thomas Jones
写真 © Brian Thomas Jones
2016

Aaron Neubert Architects によるその他のプロジェクト 

Metric
Los Angeles, California, アメリカ
Museum of Compassion
Louisville, アメリカ
t House
Los Angeles, アメリカ
Sunset Hybrid
Los Angeles, アメリカ
The Bunker
Studio City, California, アメリカ