Decameron store
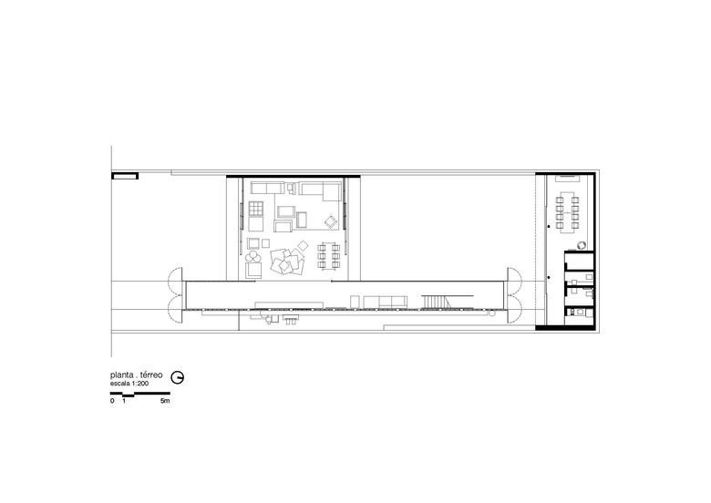
The showroom of the Decameron furniture store is located on a rented site in the furniture commercial alley in São Paulo. To make the quick and economic construction viable, the project worked with the premise of a light occupation of the lot, basically done with industrial elements, which could easily be assembled.
The space was constructed through a mixed solution, with maritime transport containers and a specifically designed structure. Despite the spatial limitation imposed by the pre-determined dimension of the containers, the piece has impressive structural attributes that makes piling them possible. Two stories of containers form tunnels where products are displayed side by side.
The ample span, necessary to show furniture in relation with each other, is constructed by a metallic structure. This space is closed, in front and in back, by double-height metal casements with alveolar polycarbonate. At the back of the lot, there is a patio filled with trees and a pebbled-ground. When both doors are simultaneously opened, the whole store becomes integrated with its urban context. At rush stressful hours, by opening only the back doors, the store becomes self-absorbed, ruled by the presence of the inner-garden.
On the back of the site is the office, closed by a glass wall that enables the designers to take part on the sales life. Two edges of the design process in contact through the inner patio as other opposing strengths also meet at this small project: The intensity of the urban life and a small nature retreat, the power of the containers and the lightness of the metallic structure and finally the linearity of the tunnels and the cubic volume.
- Anno
- 2011









