Umbau I Geschäftshaus, Aeschengraben 9, Basel
Aeschengraben 9, Basel, Svizzera
AUSGANGSLAGE
Das Erdgeschoss der von Walter Senn 1964 erstellten Liegenschaft Aeschengraben 9 in Basel stand seit Ende Mai 2008 leer. Die über Jahre gewachsene Struktur und Anordnung der Räume sowie die unattraktiv gewordene Eingangssituation standen einer Neuvermietung im Wege.
LÖSUNGSANSATZ
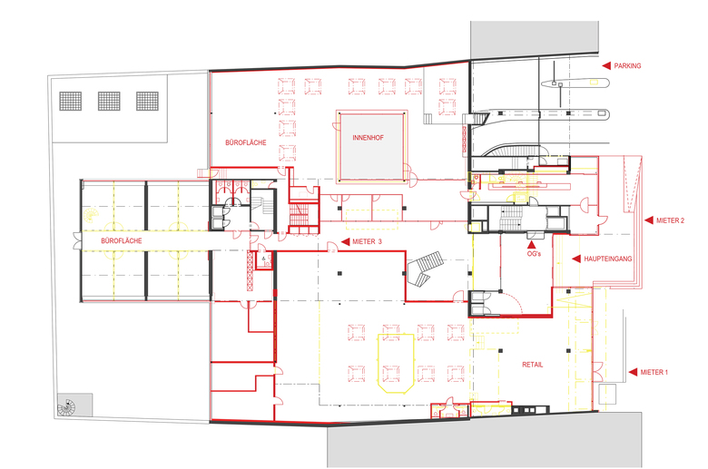
Ein neues Nutzungskonzept ermöglicht es nun bis zu drei Mietern die Flächen als Verkaufslokal, Bürofläche oder Barbetrieb auszubauen. Nach dem Umbau vermittelt der neu gestaltete, grosszügige Vorplatz mit einem einheitlichen Terrazzobelag über Treppenaufgang und Rampe in die Eingangshalle. Im Innern bildet eine grosszügige Erschliessungshalle den Verteiler zu den drei erdgeschossigen Mieteinheiten und in das erste Obergeschoss. Die Halle erhält über neu erstellte Verglasungen zu den Mietflächen sowie über Oberlichter Tageslicht und erscheint dadurch hell und einladend.
DENKMALSCHUTZ
Die Eingangsfassade, welche schon mehrfache Umbauten erlebt hatte, wurde im Erdgeschoss mit Rücksicht auf den ursprünglichen architektonischen Ausdruck und in Rücksprache mit der Denkmalpflege neu interpretiert und erstellt.
UMBAUMASSNAHMEN UND ETAPPEN
Im gesamten Erd- und Zwischengeschoss sowie den drei Untergeschosse wurden im Vorfeld fachgerecht Asbestsanierungen durchgeführt. Anschliessend wurde es, bis auf den Rohbau ausgeräumt und den heutigen bau- und haustechnischen
Standards entsprechend saniert. Die Umsetzung eines neuen Brandschutzkonzeptes erforderte zudem unter anderem die Neuerstellung zweier Fluchttreppenhäuser. Während der gesamten Sanierung waren die Obergeschosse des Bürohauses vermietet und wurden ohne Unterbrechung genutzt. In weiteren Umbauetappen wurden freigewordene Mietflächen neu aufgeteilt und erneuert sowie sämtliche Nasszellen des Gebäudes saniert.
FARBKONZEPT
Handlung, Dipl. Arch. ETH Thomas A. Berger
- Architetti
- Lo Verdi Architekten AG ETH/SIA
- Anno
- 2012
- Project Status
- Costruito
Progetti collegati
Rivista
-
-
-
-
Un despatx madrileny signa un visionari catalitzador urbà en West Palm Beach
Andrea Pala | 29.11.2018 -
L'arquitectura de Francis Keré en escena en el Museu ICO de Madrid
Andrea Pala | 28.10.2018









