House Dede

Drongen, Belgio
Foto © Tim Van de Velde Photography

House Dede is one of a kind. A building with a soul inherited from the land's past but with contemporary architectural and design features that enable the imagination and nature to thrive.

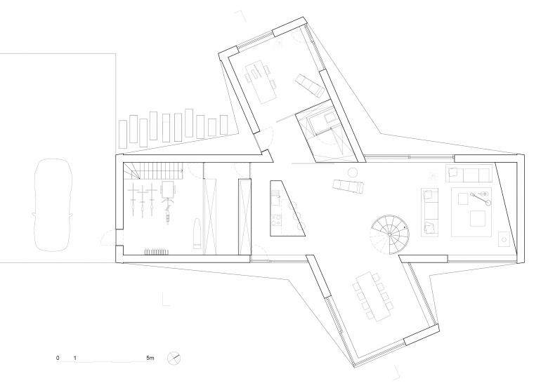
Disegno © OYO Architects
Foto © Tim Van de Velde Photography
Foto © Tim Van de Velde Photography
Foto © Tim Van de Velde Photography
© Tim Van de Velde Photography
Anno
2019

Altri progetti di OYO Architects 

Unilin Offices
Wielsbeke, Belgio
House Soli
Oostduinkerke, Belgio
Soccer clubhouse
Jabbeke, Belgio
Skogfinsk Museum
Svullyra, Norway
Masterplan Olivierstadium 3.0
Knokke, Belgio