Neubau MFH, Müllheimerstrasse, Basel
AUSGANGSLAGE
Die baufälligen Wohnhäuser der beiden Parzellen an der Müllheimerstrasse 161/163 sollen einem Neubau weichen. Charakteristisch für die Bauparzelle ist, dass die Bestandesbauten auf drei Seiten an Nachbargebäude angebaut sind.
LÖSUNGSANSATZ
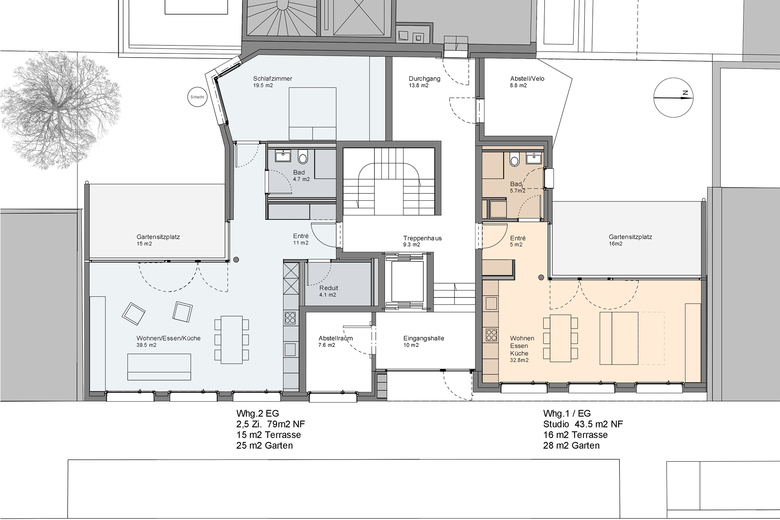
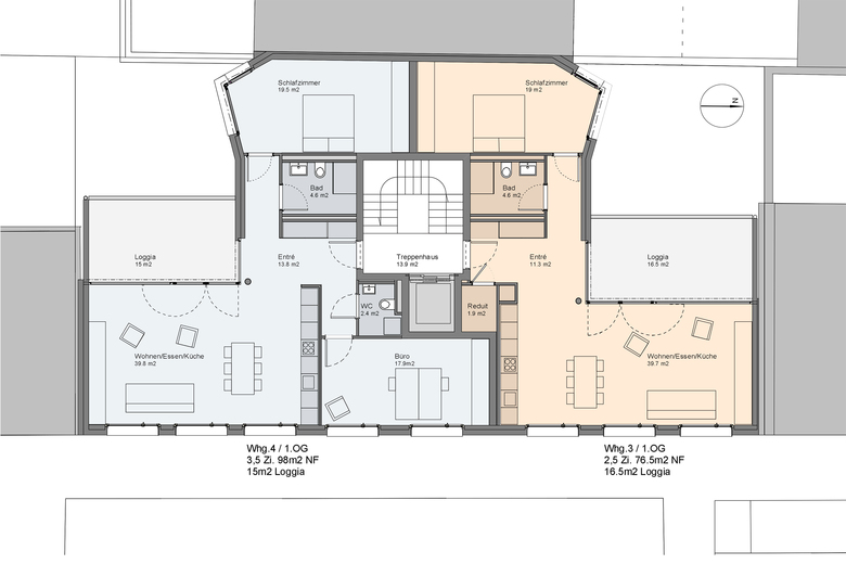
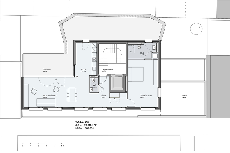
Tageslicht und privater Aussenbereich waren unsere Leitgedanken bei der Erarbeitung des Projekts. Es galt, das Tageslicht durch sinnvolle Abwicklung und Anordnung der Wohnräume, optimal zu nutzen. Zudem Verfügen alle Wohnungen über einen privaten Aussenbereich in Form einer Loggia. Die Loggien bieten einen zusätzlichen Wohnraum während den warmen Jahreszeiten. Die Lage im Kleinbasler Matthäusquartier erforderte einen einfachen Ausbaustandart und einen ökonomischen Umgang mit den Mitteln.
- Anno
- 2015
- Project Status
- Costruito






