Sportzentrum Sargans
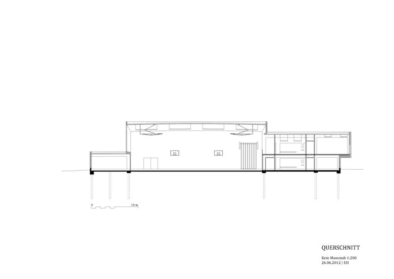
Die serielle und dichte Tragstruktur mit schlankem Querschnitt läuft konsequent durch alle Gebäudebereiche hindurch und macht die Halle zu einem bis in den innersten Kern wahrnehmbaren Holzbau. Die Ansprüche der Bauherrschaft an Nachhaltigkeit, regionale Wertschöpfung, kurze Bauzeit und eine Design-to-cost-Vorgabe führten zu einer hochgradig vorfabrizierten Holzkonstruktion.
Die Tragstruktur durchdringt alle Gebäudebereiche und prägt die räumliche und architektonische Erscheinung der Hauptnutzräume: Foyer, Halle, Gymnastikräume. Das Haupttragwerk aus Fichte besteht aus vierzig schlanken, eng gereihten und teilweise zweigeschossigen Rahmen aus Brettschichtholz.
Um die im Vergleich zu den Hallenträgern schwächeren Hallenstützen nicht zu überlasten, wurden die nahezu biegesteifen Rahmenecken mit positiven Momenten vorbelastet. Als Nebentragwerk und zugleich als aussteifende nachgiebige Schubfelder wurden bei den Dächern Dreischichtplatten eingesetzt.
Die Geschossdecke unter den Nassbereichen ist als Holz-Beton-Verbunddecke mit Unterzügen aus kombiniertem Esche-/Fichte-Brettschichtholz, teilvorfabrizierten Gitterträgerplatten und vor Ort gegossenem Überbeton ausgeführt. Das grösste Feld mit fast elf Metern Spannweite ist mit 15 Tonnen schweren Betonfertigteil-Duschzellen belastet.
Anerkennung Prix Lignum.
- Anno
- 2012
- Im Zusammenarbeit mit
- Ruprecht Architekten











