Erweiterung Schulanlage

Foto © Pierre Montavon

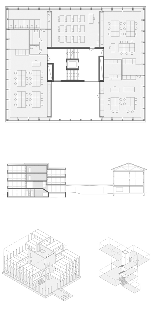
Die ausgedehnte, sternförmige Schulanlage, die bereits mehrmals erweitert wurde, erhält einen präzisen und kompakten Baukörper hinzugefügt. Die von den bestehenden Bauten losgelöste Erweiterung ermöglicht es, die Qualitäten der Aussenräume zu wahren und weiterzuführen. Die Schnittlösung mit Splittlevel ergibt eine sinnvolle Verteilung des heterogenen Programmes: Mensa mit Küche, Werkräume, Bibliothek, Schüleraufenthalt, Lehrerzimmer, Zeichensäle und Klassenzimmer. Die Gebäudestruktur aus Holz ist modular konzipiert: sie lässt sich entlang des aussteifenden Erschliessungskernes aus Beton vertikal erweitern und sich den ändernden Bedürfnissen der Benutzer anpassen. Die Fassade aus farbigem Holz zieht sich in Form von durchgehenden Bändern um das Gebäude, deren Höhen sich mit den verschiedenen Funktionen und versetzten Geschossdecken verändern. Das Tragsystem soll weitgehend vorfabriziert werden, um die Bauimmissionen auf ein Minimum zu reduzieren. Der Neubau erfüllt die Anforderungen des Minergie-Standards.

Foto © Pierre Montavon
Foto © Pierre Montavon
Foto © Pierre Montavon
Foto © Pierre Montavon
Foto © Pierre Montavon
Foto © Pierre Montavon
Anno
2012
Project Status
Costruito

Altri progetti di GXM Architekten 

Le Ticle Zentrumsüberbauung
Delémont, Svizzera
Multifunktionale Überbauung Gare des Eaux-Vives
Genf, Svizzera
Familien- und Generationenhaus
Zürich, Svizzera
Dauerausstellung MICR
Genf, Svizzera
Wohnwerkstatt
Dübendorf, Svizzera