Casa entre la pinada.
Veintiuna mesetas y siete volúmenes cuentan la historia de esta casa.
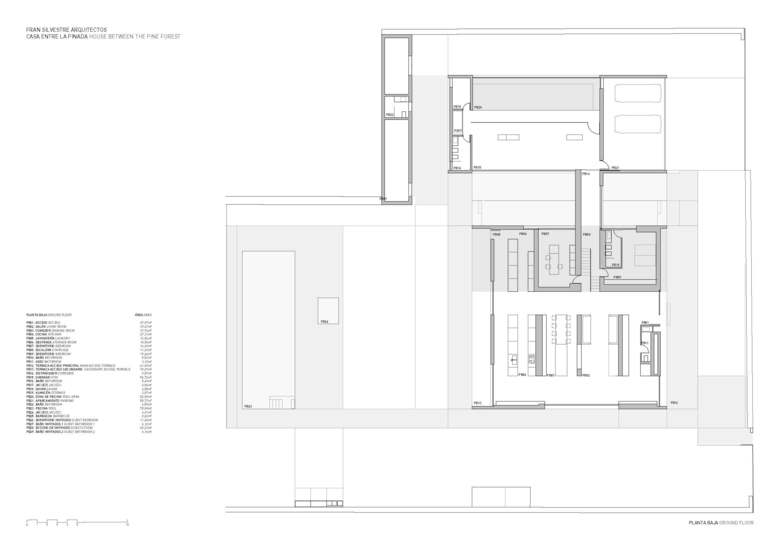
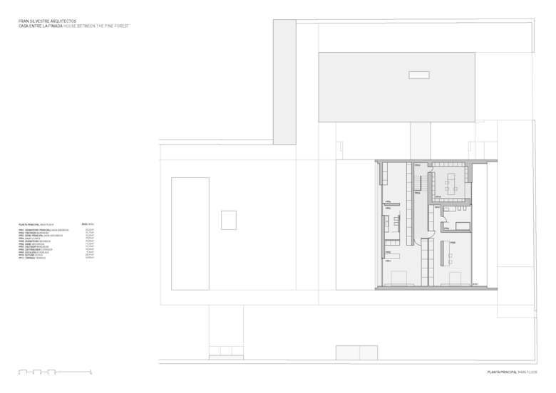
El proyecto consiste en dar una identidad nueva y uniforme a una casa que pertenece a la misma familia durante varias generaciones. La vivienda original constituida por la agregación de distintas intervenciones realizadas en épocas distintas , con sistemas constructivos distintos. Cada uno de los espacios de la casa narra un momento en la historia de esta familia. De esta forma era esencial mantener la estructura, los espacios, los usos, el jardín y los recuerdos, presentándolos de una forma renovada.
El nuevo estrato construido en la historia de este lugar emplea nuevos volúmenes para las nuevas partes del programa. Se proyecta así un espacio que alberga las zonas de ocio, conteniendo siempre la escala de la edificación que se presenta como una suerte de agregación de pequeñas piezas, que dibuja patios y acota las zonas, como lo hace la arquitectura tradicional mediterránea.
El interior respeta el sistema de seminiveles produciendo una gran heterogeneidad espacial con estancias con una gran diversidad de dimensiones y alturas. La estructura portante de la vivienda original se aloja en el interior del mobiliario que tiene la misma tonalidad gris que los troncos de alguna de las especies que habitan el jardín.
La casa se teje tanto entre los árboles como entre los buenos recuerdos que viven en esta pinada.
- Anno
- 2016





























































