Die ehemalige Spinnerei Herding bietet einen feinsinnigen Dialog zwischen historischer Bausubstanz und aktuellen architektonischen Akzenten. Das Industriedenkmal wurde für eine neue Nutzung als Kulturfabrik saniert. Schaulager,
Sonderausstellungsflächen, Veranstaltungsräume und Gastronomie finden Platz im so genannten TextilWerk. „Beleben und neu erlebbar machen“ waren die Maxime des ATELIER BRÜCKNER. Gezielte architektonische Eingriffe unterstreichen die ursprünglichen Funktionszusammenhänge der Fabrik. Form- und Farbsprache wurden aus dem Altbestand heraus entwickelt.
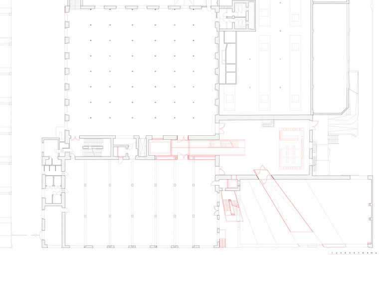
Als zentrales Erschließungselement dient eine rot akzentuierte Treppe, die in den 20 Meter hohen Seilgang der ehemaligen Fabrik eingebracht wurde. Über diese eröffnet sich das Gebäude nun entlang der ursprünglichen Energieachse: vom Kesselhaus (Erzeugung der Energie) über das Maschinenhaus (Umwandlung der Energie in Bewegung) und den Seilgang (Kraftübertragung) bis zu den großzügigen Spinnereisälen und der ehemaligen Technikzentrale auf dem Dach des Flachbaues (Absaugung der Luft). An ihre Stelle tritt nun ein luftiges Restaurant, dessen vorgehängte Fassade aus stählernen Fäden die Metaphorik der ehemaligen Spinnerei aufgreift. Im Inneren des neuen, gläsernen Kubus erinnert eine Installation aus 88 Deckenleuchten der 1950er Jahre an diese wichtige Zeitphase der Fabrik.
Ein Zwiegespräch zwischen aktueller Nutzung und historischem Bestand entwickelt sich auch auf den darunter liegenden vier Etagen des insgesamt rund 6000 Quadratmeter umfassenden Gebäudekomplexes. Zum Bestand, der als Zeitdokument mit all seinen Nutzungsspuren erlebbar bleibt, tritt eine gleichwertige, neue Zeitschicht. Die Funktionsräume, zu denen Shop, Counter, Garderobe, Catering und WC-Bereiche zählen, sind als eigenständige Elemente in den Industriebau eingebracht. Ihre hellgraue Oberfläche hebt sich von der heterogenen Umgebung ab, während ihr Inneres jeweils eine Farbe der historischen Raumfassung aufgreift: Blau, Rot, Grün, Weiß und Schwarz. Auch die mobile Möblierung setzt auf diese Farbtöne.
TextilWerk
Torna alla Lista di Progetti- Sede
- Bocholt, Germania
- Anno
- 2011
- Auftraggeber
- LWL Industriemuseum
- Ausstellungsfläche
- 6000 qm
- Planungsaufgaben
- Generalplanung
- Bauleitung
- Eling Architekten, Wesel
- Tragwerksplanung
- Ingenieurbüro Pross, Bocholt
- Elektroplanung
- Ingenieurbüro Kipp & Knuhr, Borken
- Haustechnik
- K&L Energietechnik, Hamminkeln
- Lichtkonzept
- LDE Belzner Holmes, Stuttgart
- Bespielung Foyer
- Thauma Motion Design Studio, Stuttgart















