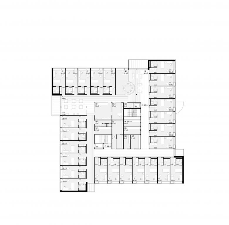
Le Tre Età dell'Uomo

Biasca, Suisse

1° Premio - Concorso nuova casa anziani di Biasca

Team:
studio we architetti, Lugano
Colombo + Casiraghi Architetti SA, Lugano
Monotti Ingegneri Consulenti SA, Locarno
Neuland Architektur Landschaft, Zurigo

Année
2023

Autres projets de studio we architettura 

L'Uomo che Piantava Gli Alberi
Lugano, Suisse
Le Officine – Un Nuovo Quartiere per Bellinzona
Bellinzona, Suisse
Arsenale
Teufen, Suisse
Casa Di Paola Extension
Cadro, Suisse
Scuola d'infanzia
Tenero, Suisse