Scuola d'infanzia
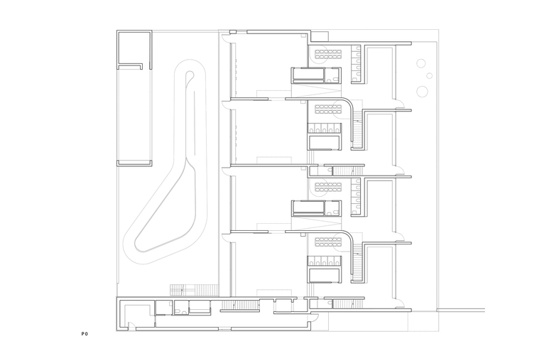
1° Premio - Il progetto per la Scuola dell’infanzia di Stabio prevede un edificio di due piani autonomo dal paesaggio, adagiato su un campo verde. Soltanto i sentieri e i muri collegano la nuova struttura dell’asilo con il territorio, per creare un nuovo insieme, sottile ma consistente, di punti di riferimento.
La forma piegata del grande tetto di cemento con la sua curvatura geometrica sul portico d’ingresso ed i lucernari, definiscono la facciata anteriore e l’espressione architettonica di tutto l’edificio. L’asilo, composto di quattro sezioni, vive del dialogo tra gli ambienti interni e gli spazi esterni, dato dalla tipologia di ogni sezione.
I bambini dovrebbero sperimentare lo spazio e l’architettura in modo naturale e giocoso, e al tempo stesso come parte della loro crescita e formazione. La definizione dei limiti spaziali nelle sue diverse declinazioni, guida i bambini nella loro ricerca di libertà e nel loro bisogno di intimità. Gli spazi, estroversi e introversi, si alternano in una serie definita dalle diverse attività. Come in una piccola città, gli spazi di dimensioni e forma diversa, la luce, la materia e il colore rendono l’ambiente ricco e versatile e regalano un’identità specifica al luogo.
- Année
- 2013










