Photo © studio we

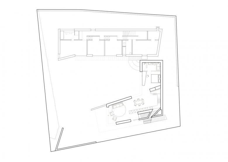
Il progetto "Extension" si inserisce come un corpo annesso ad una villa esistente, completamente indipendente da essa.

Photo © studio we
Photo © studio we
Photo © studio we
Photo © studio we
Photo © studio we
Photo © studio we
Photo © studio we
Photo © studio we
Photo © studio we

Casa Di Paola Extension

 Retour à la liste des projets
Lieu
Cadro, Suisse
Année
2019

Autres projets de studio we architettura 

Arsenale
Teufen, Suisse
L'Uomo che Piantava Gli Alberi
Lugano, Suisse
Le Officine – Un Nuovo Quartiere per Bellinzona
Bellinzona, Suisse
Scuola d'infanzia
Tenero, Suisse
Casa Bambù
Sonvico, Suisse