Campus USI
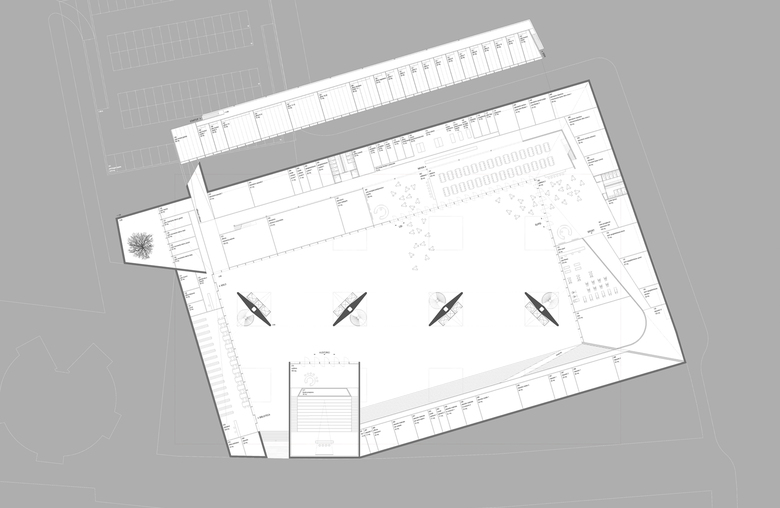
Il progetto per il nuovo Campus USI a Lugano è un tassello che si aggiunge ad un sistema esistente di spazi pubblici lungo le sponde del fiume Cassarate, che attraversa la città. Tramite un intervento unitario per l’intero lotto, che si realizza nella scelta di un grande tetto, integra la scala territoriale. Inoltre grazie ad un intervento compatto che si realizza in un basamento unitario, il progetto risponde alla scala urbana e la integra.
La sopraelevazione di gran parte del programma garantisce la fruibilità del piano orizzontale dello spazio urbano creando un grande vuoto aperto e strutturato per la comunità.
La parte adibita allo studio e al lavoro intellettuale – uffici, aule e laboratori – è rialzata da terra, come una nuvola, formando una sorta di città ideale del sapere.
Il basamento è invece un’opera di terra, che modifica la topografia del terreno. In un unico gesto scava una grande arena pubblica: unitamente il tetto e il basamento definiscono un nuovo ricco spazio pubblico multifunzionale aperto alla città.
Grazie alla scelta volumetrica e tipologica il campus in ogni sua parte è in costante rapporto con lo spazio urbano e sociale: non crea una cittadella privata e autoreferenziale, ma espone con discrezione la vita del campus al pubblico e fa dialogare lo studio e il sapere con l’intera città.
- Année
- 2010








