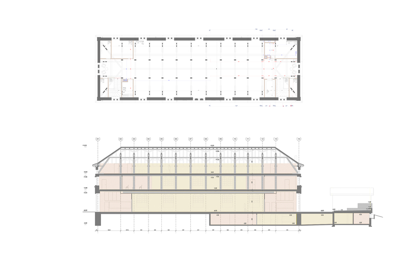
1° Premio - Progetto di riqualificazione dell’arsenale di Teufen (St. Gallo) in collaborazione con l’arch. R. Elser

Dessin © studio we

Arsenale

 Retour à la liste des projets
Lieu
Teufen, Suisse
Année
2012

Autres projets de studio we architettura 

L'Uomo che Piantava Gli Alberi
Lugano, Suisse
Le Officine – Un Nuovo Quartiere per Bellinzona
Bellinzona, Suisse
Casa Di Paola Extension
Cadro, Suisse
Scuola d'infanzia
Tenero, Suisse
Casa Bambù
Sonvico, Suisse