Villa Veyrier
Veyrier, Suisse
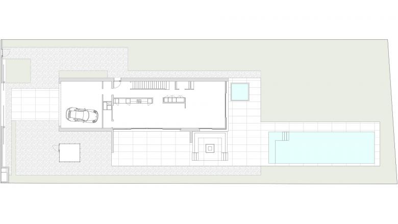
The VILLA VEYRIER is situated in an idyllic small Swiss village with a beautiful panoramic view of the backyard and the Mont Salève. The villa also has a cosy outdoor area including a pool for hot summer days and a campfire for cool winter days. These complement the open outdoor area, which also includes the terrace and lounge. The villa has several rooms, including a master bedroom and a fitness room on the first floor, where the family can enjoy some privacy and relax after tedious days. The minimalist architectural lines and the shape of the VILLA VEYRIER create a feeling of modernity and comfort. VILLA VEYRIER won the International Property Award for the Best Architecture Single Residence Switzerland 2018-2019. More at https://www.studioforma.ch/architecture-projects/residential/villa-veyrier
- Architectes
- STUDIOFORMA
- Année
- 2021
- Project Status
- En construction
Projets liés
Magazine
-
-
-
-
Un despatx madrileny signa un visionari catalitzador urbà en West Palm Beach
Andrea Pala | 29.11.2018 -
L'arquitectura de Francis Keré en escena en el Museu ICO de Madrid
Andrea Pala | 28.10.2018















