Studienzentrum Montanuniversität Leoben

Peter Tunner Straße 23, Leoben, Autriche
Video © Franz&Sue
Photo © Hertha Hurnaus

Die zweitgrößte Stadt der Steiermark hat ihrer Universität viel zu verdanken und ist dementsprechend stolz darauf, dass mitten im Zentrum 4.000 Studierende aus aller Welt ausgebildet werden. Die Montanuniversität Leoben gehört dabei in ihrem Forschungs- und Ausbildungsfeld zu den internationalen Spitzenreitern. Auf einer der letzten innerstädtischen Platzreserven wird zukünftig ein hochmoderner Universitätscampus entstehen, zu dem das neue Studienzentrum nun den ersten Baustein liefert. Eingebettet in die historische Gründerzeitstruktur und in attraktiver Lage direkt an der Mur ist ein identitätsstiftendes Gebäude entstanden, das sich selbstverständlich in die Umgebung einfügt.

Campus direkt in der Stadt – In Zeiten universitätspolitischen Wandels steht sie wie ein Fels in der Brandung da: Die Montanuniversität Leoben, Hochschule für Berg- und Hüttenwesen, gehört in ihrem spezialisierten Forschungs- und Ausbildungsfeld zu den internationalen Spitzenreitern. In den kommenden 30 Jahren soll das Areal der Universität stetig wachsen. Ein moderner Universitätscampus definiert sich jedoch nicht nur über seine Gebäude, sondern auch über attraktive Freiräume. Als erstes Gebäude am zukünftigen Campus bildet das Studienzentrum im Erdgeschoß den zentralen Platz mit hoher Aufenthaltsqualität mit seinem warmen, erdroten Fußboden – sowohl innen als auch außen. Die Eingänge springen allseitig zurück und bilden für die Studierende so einen guten Witterungsschutz.

Von Schichtungen und Muscheln – Von außen wirkt das Gebäude zunächst ganz einfach. Vier Geschoße, vier Fensterbänder, alles klar ablesbar. Die Fassadenbänder sind in unterschiedlichen Dicken und Farbnuancen geschichtet. Eine Referenz an den Bergbau und die Schichtung von Gestein. Unaufgeregt, bodenständig und wertig. Mit dem bestehenden Gründerzeitgebäude tritt das neue Studienzentrum in einen freundlichen Dialog und bildet gestalterisch ein stimmiges Ensemble.

Campus mit Identität – Beim Betreten des Campus merkt man schon im Erdgeschoß, dass das Gebäude im Inneren anders als ein normales Haus funktioniert. Die drei Hörsäle für insgesamt etwa 1.000 Studierende und das Hauptstiegenhaus liegen im Inneren des Gebäudes wie Muscheln frei verteilt. Im Spannungsfeld dazwischen und herum fließen die offenen Studienbereiche. Auf diese Art entstehen abwechslungsreiche Raumsituationen: gefasste Plätze, großzügige Bereiche mit Blick ins Grüne, kleine abschließbare Gruppenräume.

Räume dazwischen – Denn dem neuen Universitätsgebäude sind diese „Zwischenzonen“ ebenso wichtig, wie das scharf funktionale Raumprogramm. Braucht es doch für hochwertige moderne Forschung und Bildung genau diese offenen Räume für Begegnung und Präsentation, Konzentration, Lernen und Erholung. Diese offene Gestaltung fördert die Kommunikation zwischen Lehrenden und Studierenden und ermöglicht einen Wechsel zwischen unterschiedlichen Lernsituationen.

Alles im Blick – Das Foyer des Studienzentrums orientiert sich sowohl zum Vorplatz als auch zur Mur und bietet ein großzügiges Entree mit Möglichkeiten für diverse Veranstaltungen. Zwei offene Lufträume sorgen für verbindende geschoßübergreifende Transparenz und Kommunikation. Das wiederkehrende Element des Trapezblechs nimmt die horizontale Gliederung der Fassade im Inneren auf und sorgt für die erforderliche akustische Dämpfung. Alle drei Hörsäle sind über Zugänge auf jeweils zwei Ebenen erreichbar. Ihre signifikante Geometrie verleiht dem Gebäudeinneren seine unverwechselbare Identität. Die Hörsäle haben Verglasungen zu den Studierzonen, somit ist immer sichtbar, was im Haus gerade passiert. Innen bieten sie eine warme und helle Lernumgebung.

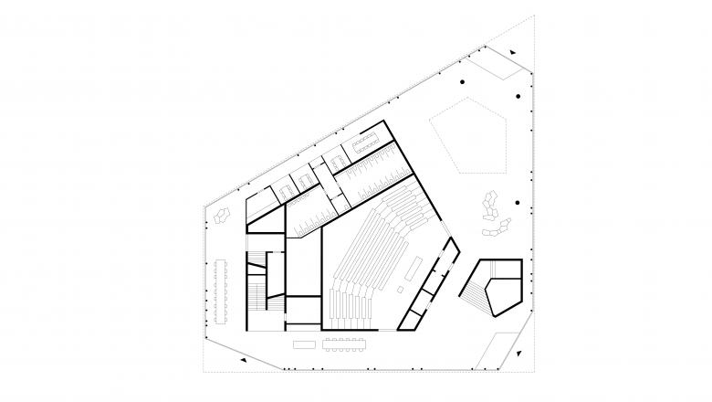
Grundriss Erdgeschoß
© Franz&Sue
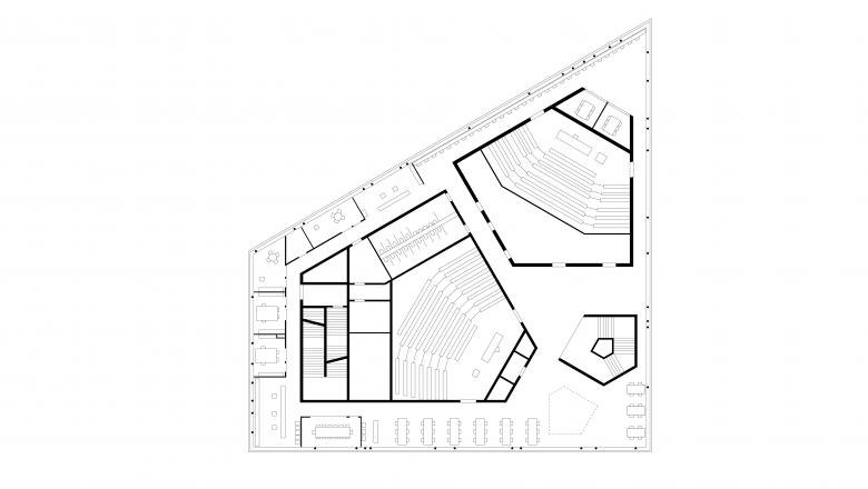
Grundriss OG2
© Franz&Sue
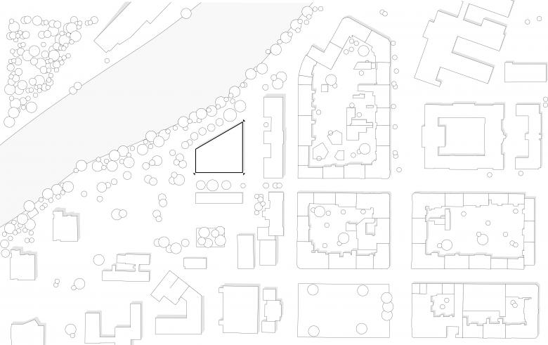
Lageplan
© Franz&Sue
Année
2022
Project Status
Construit
Équipe
Corinna Toell (PL), Johannes Alge, Lica Anic, Sophie Wiedemann, David Schiefer, Ajdin Vukovic, Suvi Repo, Julia Sonnleitner, Gregor Natter, Johanna Schultze, Lara Baler
Statik
Bollinger und Grohmann ZT GmbH
Bauphysik
IBO Östereichisches Institut für Bauen und Ökologie
Gebäudetechnik
Zencon GmbH
Landschaftplanung
EGKK Landschaftsarchitektur
Brandschutzplanung
Norbert Rabl ZT GmbH

Autres projets de Franz&Sue 

Bildungscampus Puntigam - Volksschule
Graz, Autriche
Wohnhochhaus Nordbahnhof
Wien, Autriche
Wohnbau Oberwagram
St. Pölten, Autriche
Neubau Berliner Stadtreinigung – BSR-Zentrale
Berlin, Allemagne
Leitspital Region Liezen
Stainach-Pürgg, Autriche