五号住宅室内设计

番禺路, 200024 上海, China
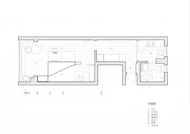
户型原状
Dessin © BTA

和猫们一起从北京搬至上海一处80年代的居民新村,但居住面积由60平缩至40平 ,为了能延续一直习惯的生活方式,继续尝试以生活方式为基础来引导空间呈现的设计方式,和猫儿们一起适应新的居住空间。

户型是一长条状,从中间入户,玄关和中部饭厅非常昏暗,和两端房间的明亮形成鲜明对比,饭厅区域呈现出消极的空间特性。如何组织和重组现状的房间关系来改善入户的第一感受和如何平衡划分生活的各个功能区,从而提升空间的品质,使得整体生活简单却不无趣。

生活记忆的延续元素
Dessin © BTA
形成新的空间形态
Photo © BTA
重新定义饭厅为空间枢纽
Photo © BTA
生活记忆元素的演变
Dessin © BTA
从厨房看向过厅
Photo © BTA
从过厅看向厨房
Photo © BTA
入口玄关
Photo © BTA
过厅
Photo © BTA
过厅
Photo © BTA
从工作区看向卧室
Photo © BTA
从工作区看向卧室2
Photo © BTA
猫帐篷1
Photo © BTA
猫帐篷2
Photo © BTA
工作区
Photo © BTA
猫帐篷3
Photo © BTA
猫帐篷4
Photo © BTA
平面图
Photo © BTA
illustration
Dessin © Yue Qi
Année
2025

Autres projets de beyondtime architects 

Service Center of Peony Performance Park
Fuzhou, China
天悦壹号室内改造设计
北京, China
Nanliang Workshop
Beijing, China
Nanliang Boutique Inn
Beijing, China
后时产品