Nanliang Boutique Inn
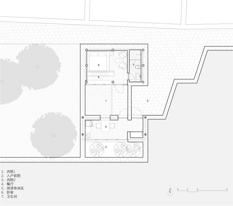
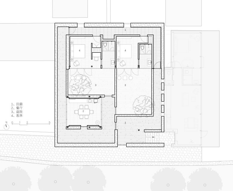
This is a refurbishment of boutique inn in the mountain village, with facinating natural scenery, and disrepaired farmhouse. There is no exclusive leisure facility in the existing village. However life needs nature and also culture. In such a full of nature surrounding village, each independent farmhouse carries the task of providing greater possibilities of culture. This task gives the guest a possibility to meet quiet moment after leaving the city, being touched momentarily after returning to nature, and introspection when they are alone. Architecture is the media to connect these possibilities, on the back of the wall, in the corridor under the skylight, in the darkness of space under the celling. Here we will find a moment of "malaise" which is a sedative, lets the time pause, gives us a second to be familiar with this malaise, and retrieve the forgotten freshness.
- Année
- 2023



























