Gärsnäs
Gärsnäs, Sweden
Gärsnäs is a Swedish furniture company based in the village of the same name. Founded in 1893 they have a long renowned tradition of timber craftsmanship. All furniture is produced at the factory in Gärsnäs which is located in the Österlen region of Skåne on the southern tip of Sweden.
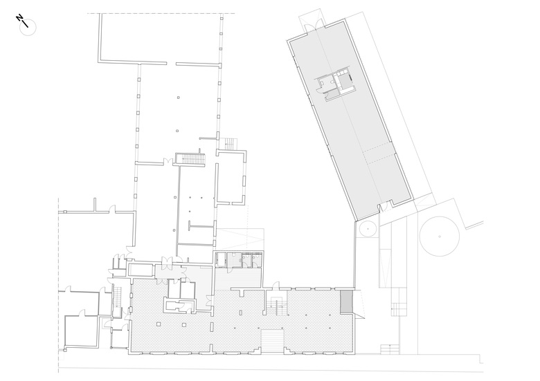
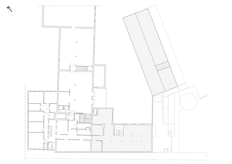
The project was initiated by Gärsnäs who appointed Dive Architects to carry out a feasibility study to look at the whole factory site and recommend improvements. The initial project has been to renovate the existing showroom and offices and to construct a new building alongside on the site of an old storage warehouse.
The new building provides a multi-functional space to hold exhibitions and events, to display new products and is periodically used to sell furniture.
The refurbishment has not only improved the facilities for the company but has also breathed new life into the village of Gärsnäs, the project was recently awarded Simrishamn Councils annual award for architecture.
- Arquitectos
- Dive Architects
- Año
- 2019
- Cliente
- Gärsnäs AB
- Equipo
- Ia Hjärre, Andy Nettleton, Valentino Barbu, Ana Riesco
- Structural Engineer
- SG Svensson
- Main Contractor
- Skanska
Proyectos relacionados
Magazine
-
-
-
-
Un despatx madrileny signa un visionari catalitzador urbà en West Palm Beach
Andrea Pala | 29.11.2018 -
L'arquitectura de Francis Keré en escena en el Museu ICO de Madrid
Andrea Pala | 28.10.2018



















