Biwak 12
Biwak 12 is the conversion of a typical 1980s restaurant located in the mountain village of Moso, in the heart of the Sesto Dolomites, in South Tyrol. In a small village everything revolves around the theme of the mountains: the idea is to create a meeting place where young and experienced mountaineers, local population and tourists can stay together in a relaxed colorful atmosphere.
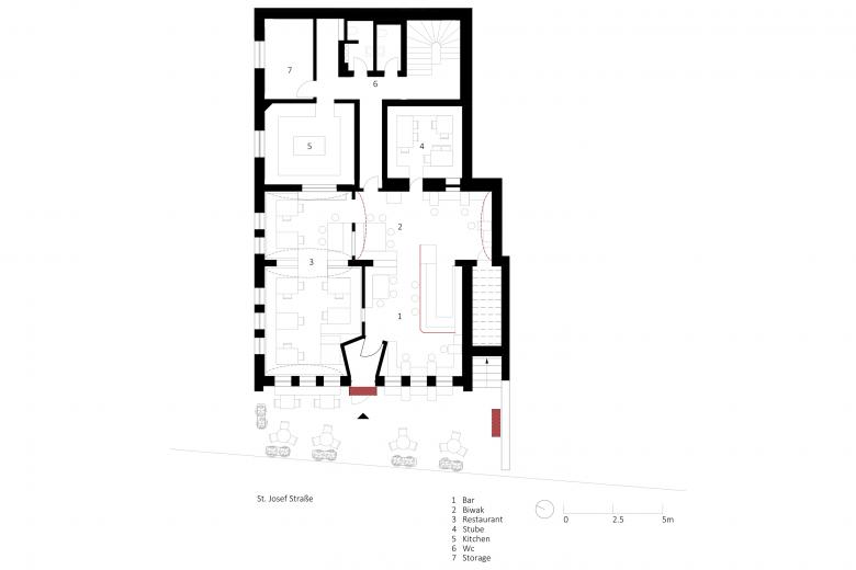
The design concept borrows the elements of a typical bivouac – specifically, the red alpine hut at the foot of the Croda dei Toni / Cima 12, which forms the pivot of the local mountain panorama - and integrates them into the reconfiguration of spaces. Both exteriors and interiors, therefore, are conceived alluding to the world of the mountains and to the microcosm of the bivouac: from the brick red color of the furniture, lamps, some walls and part of the vaulted roof, to the tactile effect of the used industrial and raw materials, such as metal sheets, maritime pine plywood panels left in their natural state (except for the chromatic treatment) and color-accentuated linoleum flooring. The graphic elements and some typical details of the mountaineer's world have been introduced to reinforce the identity.
A consistent graphic concept sets selective accents. Following the principle of upcycling, the project focuses on reuse of materials, reorganizing of spaces and reassembling of chromatic scenario. The vaulted roof has been recovered and integrated into the new environment with the desire to give character to the space. Between the lively and dynamic bar area and the more intimate and reserved restaurant area, the room that expresses the theme of the project – the experience of the bivouac near the Croda dei Toni - has been created. It has been placed in an arched niche with the dominating red color, where the folding tables have been completed with climbing carabiners, recalling those of the bivouac. The high mountain bivouac has been revived in the Biwak 12. As a reminder of the link with the history and tradition of the area, the original Tyrolean “stube” has remained intact.
Through a few targeted interventions, the external appearance of the place (extension of an old existing building) appears completely new compared to the surrounding context, with which it is ready to dialogue and interact. Starting from the terrace above the bar / restaurant, it is accessible to the public aiming to establish a new point of reference and revitalization for the village.
Reuse!
- Año
- 2022
- Cliente
- private















