Sanierung und Erweiterung Realschule
Auf Wunsch der Stadt Gerlingen wurde die in den 1970er-Jahren realisierte Realschule auf drei Züge erweitert und aktuellen pädagogischen Ansprüchen angepasst. Der Entwurf definiert die Realschule innerhalb des bestehenden Schulzentrums als einen klar ablesbaren Ort der Identifikation. Das Bestandsgebäude bleibt als Rohbau erhalten und wandelt sich durch Anpassungen und Erweiterungen zum zentralen Element eines modernen Schulensembles mit flexiblen Nutzungsmöglichkeiten.
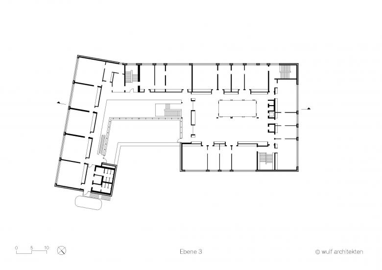
Da das Gebäude in den Hang hinein gebaut wurde, entstehen attraktive Freiflächen mit Bezug zu den unterschiedlichen Gebäudeebenen. Ringförmig legen sich die Neubauteile mit den neuen Fachklassentrakten um den Bestandsbau, der zum »Lernhaus« wird und mit den »Cluster-Flächen« ein wesentliches Element des pädagogischen Konzepts beherbergt: Flexibel nutzbare Flächen, die sich auch für Still- oder Gruppenarbeiten sowie als Aufenthaltszonen anbieten. Um jeden »Cluster« gruppieren sich pro Geschoss jeweils sechs Klassenzimmer. Die von großen Fensteröffnungen geprägte Fassade wird durch den Wechsel von glatten Betonfertigteilen und rauem Putz horizontal gegliedert, ihren besonderen Reiz erhält sie durch das subtile Relief der Oberflächen. Die dreigeschossige, lichtdurchflutete Aula verbindet die Lernhäuser über Galerien mit dem Fachklassentrakt, so dass zwischen den Ebenen attraktive Blickbeziehungen entstehen. Dank der Hanglage bietet die Aula auf zwei der drei Geschosse Verbindungen in die umgebenden Außenanlagen.
- Year
- 2023
- Client
- Stadt Gerlingen
- Team
- Coskun Kocak (TL), Hendrik Nagel (PL), Pawel Adamczyk, Gisela Dierolf, Fabrice Köhler, Eunyou Lee, Andreea Puscasu, Jingjia Zhang
- Projektsteuerung
- Stein und Partner Projektmanagement Beratende Ingenieure
- Bauleitung
- SZV Baumanagement
- Tragwerksplanung
- bde
- Landschaftsarchitektur
- Jetter Landschaftsarchitekten
- Bauphysik
- Bayer Bauphysik Ingenieurgesellschaft
- HLS-Planung
- IWP Ingenieurbüro für Systemplanung
- ELT-Planung
- Bauplanung Franz
- Brandschutz
- Ralf Kludt Sachverständige und Ingenieure
- Leitsystem
- Schramke Design
- Fotos
- Brigida González






