Mehrzweckhalle Schule Mettlen

Dättlikon, Switzerland
Photo © Christian Schwager
Photo © Christian Schwager
Photo © Christian Schwager
Photo © Christian Schwager
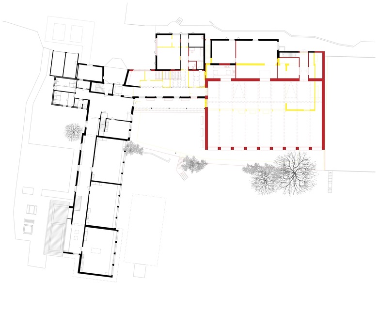
Grundriss Erdgeschoss
Drawing © Schneider Gmür Architekten
Querschnitt
Drawing © Schneider Gmür Architekten
Year
2010
Client
Gemeinde Dättlikon

Other Projects by Schneider Gmür Architekten 

Zentrum Freitaghaus Wohnen für Menschen mit Demenz
Winterthur, Switzerland
Wohnhäuser am Rebweg
Trüllikon, Switzerland
Schule für cerebral gelähmte Kinder
Winterthur, Switzerland
Wohnüberbauung Cresta Park
Zürich Wollishofen, Switzerland
Instandsetzung und Umnutzung Suchtfachklinik Zürich
Zürich, Switzerland