Xue Xue Institute

Taipeh, China
Xue Xue Institute, Taipei (Taiwan)
Photo © Ingmar Kurth

To create the first private university in Taiwan, the conversion of an empty, ten storey, 8200 sqm large office tower in the centre of Taipei’s Nai Hu commercial district into the Xue Xue Insitute was commissioned. Central to the interior design concept was the idea of promoting communication between different user groups to enhance interdisciplinary exchange as a basis for better working and learning – away from traditional podium-style lecturing towards a more active and lively exchange of ideas between professors and students. The completion of the interior included the conception of the ground floor shop and media gallery, the second floor restaurant and kitchen areas, as well as the classrooms and office facilities located on the third floor to sixth floor. A central element made from oak serves as guiding orientation on every floor. Alongside designing and realising the interior architecture, the briefing also included the planning and realisation of all furniture. The Xue Xue Institute is Taiwan’s first private academy dedicated entirely to the creative arts, design and culture.

Xue Xue Institute, Taipei (Taiwan)
Photo © Ingmar Kurth
Xue Xue Institute, Taipei (Taiwan)
Photo © Ingmar Kurth
Xue Xue Institute, Taipei (Taiwan)
Photo © Ingmar Kurth
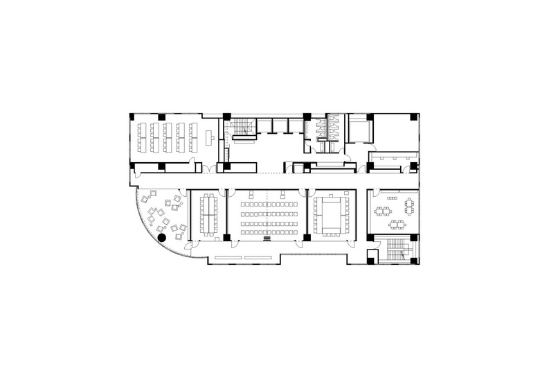
Drawing © PHILIPP MAINZER OFFICE FOR ARCHITECTURE AND DESIGN
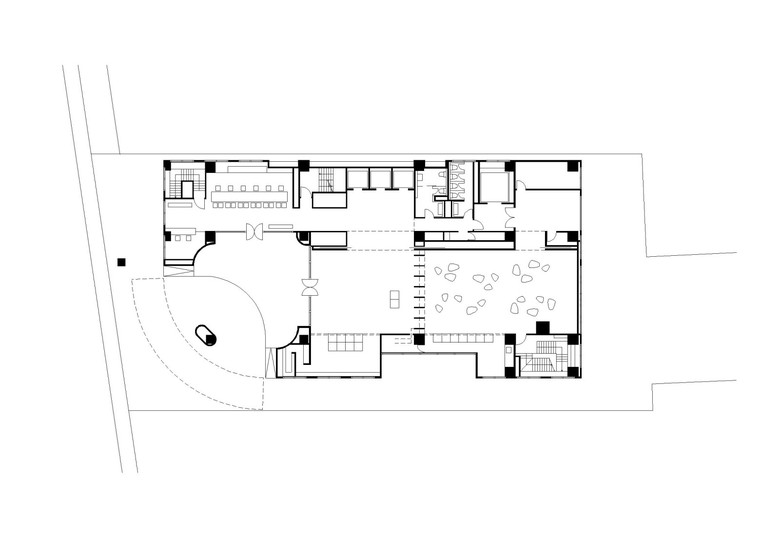
Drawing © PHILIPP MAINZER OFFICE FOR ARCHITECTURE AND DESIGN
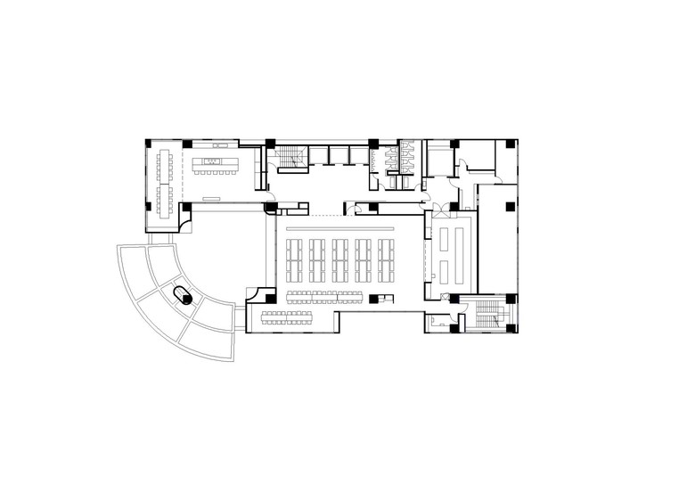
Drawing © PHILIPP MAINZER OFFICE FOR ARCHITECTURE AND DESIGN
Architects
PHILIPP MAINZER OFFICE FOR ARCHITECTURE AND DESIGN
Year
2006
Project Status
Built

Related Projects 

  • Moos
    playze
  • Reiters Reserve Premium Suites
    BEHF Architects
  • Erweiterung und Instandsetzung Hallenbad Altstetten
    MIYO Visualisierung
  • Neubau von fünf Einfamilienhäusern
    Bäumlin + John Architekten ETH/SIA
  • The Forge at 105 Sumner Street in London
    Kiefer Klimatechnik GmbH

Magazine 

Other Projects by PHILIPP MAINZER OFFICE FOR ARCHITECTURE AND DESIGN 

The Borsellinos
Wallhausen, Germany
Futura One
Taipei, China
Monkey 47
Loßburg, Germany
APEX
Yancheng, China
House R
Frankfurt am Main, Germany