Photo © Jose Hevia

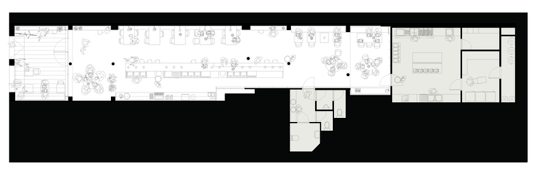
In the ground floor of a XIX century building situated in the Barcelona Eixample, we are asked to refurbish an establishment that has lost its character by the addition of different construction layers through time. 

We understand the project as an opportunity to recover what we consider essential: the spaciousness and the industrial character of the space by the reinforcement of its materiality. The intensification of the material memory is not a nostalgic or romantic attitude. We have chosen an unprejudiced and inclusive attitude, that doesn’t discriminate between this or that, but goes for this and that, our work, then, has consisted in updating the old layers and putting them together (in "vis a vis" relation) with the new ones.

The process was extremely fast (three months in total) and had strong economic constrictions (320€/m2), so we decided to go for a clear and determined strategy: the DIY strategy (“do it yourself”). We have worked following an open process of action-reaction, where all mistakes or changes could be understood as an added value. We are interested in a hybrid technique, capable of combining local materials and techniques, close to the craftwork tradition, with industrial materials and technics from other sources.

The furniture has been defined by the maximum optimization of 50 wooden boards of 250 x 125 x 30 mm. The different furniture elements have been fixed in different heights in relation to their use through the spatial sequence of the establishment.

Photo © Jose Hevia
Photo © Jose Hevia
Photo © Jose Hevia
Photo © Jose Hevia
Photo © Jose Hevia
Photo © Jose Hevia

Burger Bar Oval

 Back to Projects list
Location
Valencia 199, Barcelona
Year
2013

Other Projects by flexoarquitectura 

58 Social Housing
Barcelona
Day and Community Center
Palma