Haus im Stall
Das ehemalige Stallgebäude an der Kantonsstrasse in Fürstenau ist in seiner volumetrischen Erscheinung ein wichtiger Teil am Rand des Stadtgefüges. In diesem Sinn ist es gemäss den gesetzlichen Vorgaben auch geschützt. Der dazugehörige Hofraum ist als Freiraum zu erhalten.
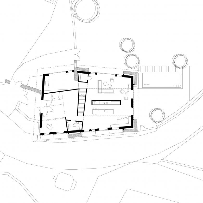
Der Stall wird neu als Wohnhaus genutzt. Es wurde ein neues, volumengetreues Wohnhaus innerhalb des alten bestehenden Natursteinmauerwerkes errichtet und mit dem erhaltenswerten Sockelbau verwoben. Ausgeführt mit einem Einsteinmauerwerk, innen glatt und aussen leicht gekörnt verputzt. Die neue Nut-zung ist deutlich ablesbar, sie wird nicht hinter ‚stallähnlichen‘ Verkleidungen versteckt. Die volumetrische Form bleibt dabei erhalten. Die neue Fassade reflektiert von aussen mit der Setzung der Fenster die Nutzung des Innenvolumens als Ganzes. Von Innen rahmen die Fenster gerichtete Ausblicke auf Fürstenau und in die Umgebung.
Das Dach ist wieder ein Blechdach, Dachreiter belichten die Halle und das Galeriegeschoss zusätzlich.
Der Hof wird als Wohnhof neu gestaltet: Ein Gartenhof mit fliessendem Übergang zur umgebenden Landwirtschaftszone, ein versenktes Bassin und als Abschluss ein bepflanzter Bereich.
- Year
- 2019
- Client
- privat












