La zona elegida para erigir la sede administrativa de la Junta de Andalucía en Granada, el polígono Almanjayar, no contribuía en absoluto a definir la forma o la organización que el edificio debía tener.
El solar elegido aparecía rodeado por edificios residenciales al oeste, un gran centro comercial al sur, aún otro supermercado al norte y unas obras eternamente inacabadas al este. Dicho de otra forma, el propósito de la administración pública era exactamente el intentar recalificar el sector a través de la presencia del nuevo edificio, lo que sin duda podía ser una buena opción en términos urbanísticos pero constituía al mismo tiempo una seria dificultad para concebir el edificio, privado de cualquier referencia próxima o cualquier dato urbano positivo al que aludir.
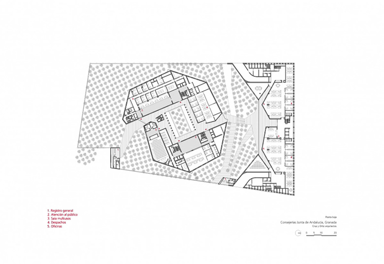
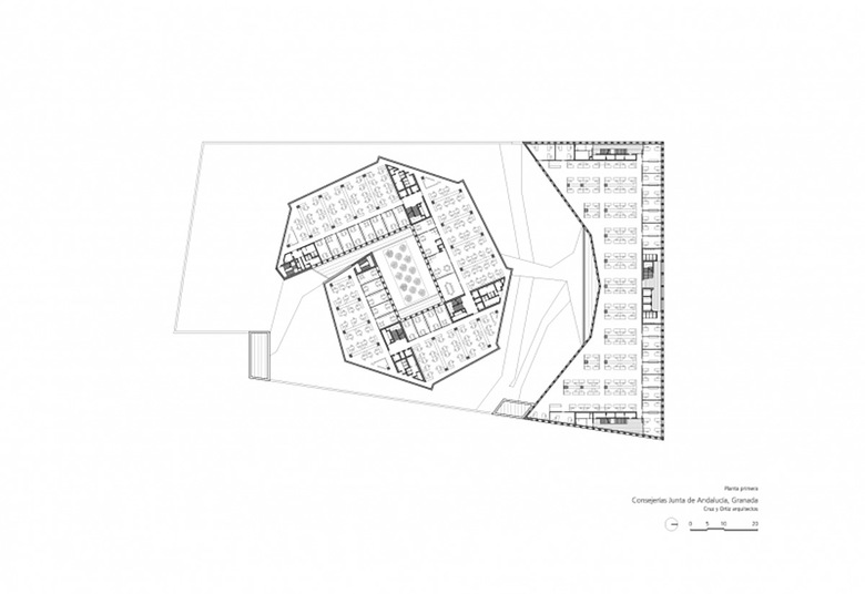
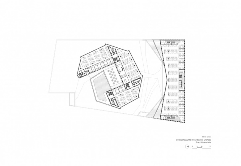
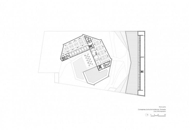
Todo ello ha conducido a proyectar un edificio muy autónomo en la configuración de su perímetro que evita replicar ninguna de las alineaciones próximas. El edificio, además, genera su forma a partir de un nuevo lugar, un patio de geometría precisa que ocupa el centro del edificio y a partir del cual se organiza todo el conjunto: en efecto, toda la edificación se desarrolla en torno a este espacio, subiendo en altura progresivamente y alcanzando tres, cinco, siete o nueve plantas según los cuatro lados del rectángulo del patio. En resumen, el edificio se presenta autónomo respecto a las alineaciones exteriores y se genera a partir de su centro, a partir del nuevo lugar creado.
Al complejo se accede desde el sur y tras pasar controles y porches, se descubre el patio que constituye para el visitante un hallazgo inesperado. Desde el patio se alcanzan los distintos núcleos de circulación vertical. La influencia del espacio central y su valor organizativo alcanza incluso a la disposición de las oficinas en las plantas, al agrupar los despachos en torno al patio mientras las zonas externas, de geometría más irregular, vienen ocupadas por oficinas de organización abierta.
Tras cruzar el patio, se descubre un edificio complementario que ha sido desarrollado en una segunda fase. Esta edificación se abre hacia el edificio principal y se presenta más hermética hacia la calle trasera. Se produce una cierta inversión y las fachadas exteriores de este segundo edificio se igualan a las interiores – las que se abren al patio – de la primera edificación.
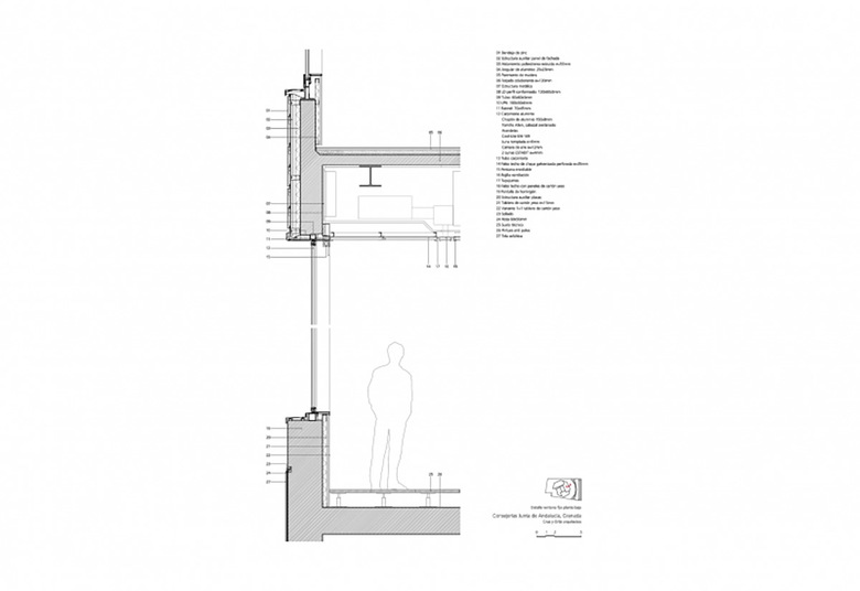
Las fachadas de ambos edificios han sido revestidas de placas de zinc y el conjunto es muy monocolor, en un gris que le distingue claramente de las edificaciones vecinas. Este afán por singularizarse ha llevado a instalar un gran reloj en el punto más alto del conjunto pretendiendo con ello afirmar y subrayar la dignidad de lo público en una zona de carácter tan periférico.
Oficinas para Consejería de Economía e Innovación en Almanjáyar
Zurück zur Projektliste- Standort
- Granada
- Jahr
- 2010
- Bauherrschaft
- Dirección General de Patrimonio. Consejería de Economía y Hacienda., Junta de Andalucía















































