Rehabilitación y ampliación
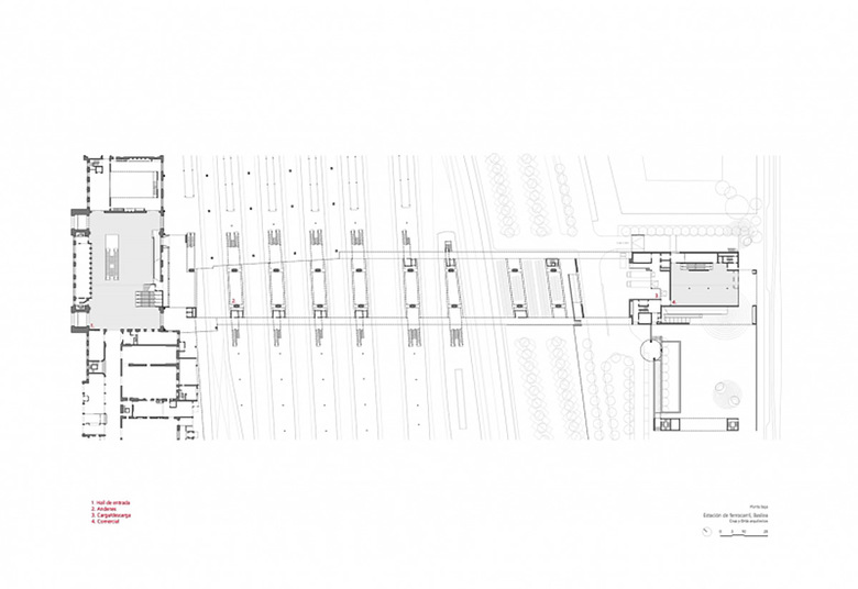
Paralela a las vías del ferrocarril, la estación de Basilea presentaba los problemas típicos de toda estación de paso. La propuesta para su transformación restituye a esta importante pieza de infraestructura su papel urbano, como puerta de la ciudad para los viajeros que llegan a ella y como vínculo entre barrios próximos hasta ahora sin conexión directa. Para conseguirlo, los pasos subterráneos que hasta la fecha
comunicaban los andenes bajo el trazado ferroviario se sustituyen por un cuerpo
levado, una pasarela que alberga comercios y otros servicios, devolviendo al antiguo vestíbulo el protagonismo perdido. Visible desde varios puntos de la ciudad, la silueta de la cubierta es la principal responsable de la imagen renovada de la estación, que se presenta transversal al recorrido del tren como si se tratara de una estación término. La construcción hubo de hacerse sin interrumpir el normal
funcionamiento de la estación. Una losa de hormigón fue construida en el extremo Sur y posteriormente desplazada sobre los andenes a un ritmo de un andén cada tres semanas. La inclinación de los paños de la cubierta -quebrados hasta definir un perfil casi topográfico- proporciona a cada uso una altura específica, facilitando el acuerdo con las marquesinas existentes sobre los andenes. Con este gesto se mantiene la continuidad de la secuencia espacial, transversal al tránsito de viajeros que caracteriza el proyecto y que culmina en un importante volumen de cabecera en el lado opuesto del vestíbulo existente y en una nueva plaza sobre un aparcamiento
subterráneo
Estación central de ferrocarril ‘Basel SBB’ y centro comercial
Zurück zur Projektliste- Standort
- Basel, Schweiz
- Jahr
- 2003
- Bauherrschaft
- Basel SBB





































