Copper House
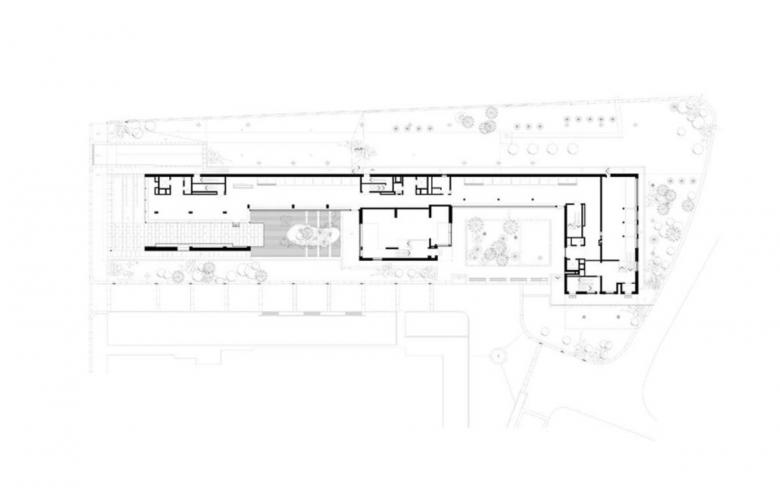
The peculiarity of the place is in the necessity to create a link between the adjacent large buildings, embankment and small public garden at the intersection of two narrow streets.
Thus the broken line of new dwelling complex composed of three different sized buildings follows the green channel which starts at Zachatjevsky monastery and ends on the river bank.
Any "standard" house would`ve become a dam across this channel, so the park-like character was given to the new composition quite intentionally.
The system of three houses unified with continuous ground floor through passage makes its interior an inseparable part of the adjacent landscape.
The effect of transparency was obtained by using large cantilevers for each volume - the mass of the house is lifted off the earth, thus it is not blocking the view and the landscape has the opportunity to pour into the inner space.
We think that this method gives Moscow architecture a new way of understanding, rendering to it plasticity and sculptural forms.
Façade materials were chosen correspondingly: patinated copper sheets were introduced for the first time, and together with natural greenery the whole complex looks like integral body inside the city block.
Side facades are covered with tilted sheets of green glass reflecting either skies or earth thus dematerializing the body of the house finished with natural wooden.
Only the white Jurassic stone on some parts of the facades does the job of tying up the new dwelling complex to the existing houses around on the streets nearby.
- Any
- 2004
- Project Status
- Construït
- Client
- Rose group
- Object name
- Copper House’ residential complex
- Project organisation
- ‘Sergey Skuratov Architects’ ltd
- General contractor
- ‘Starteks Stoun’ ltd
- Authors
- S. Skuratov (lead author), V. Ryshova, N. Ishutina, Y. Kovaleva, A. Medvedev, P. Karpovsky, P. Shalimov, N. Demidov, V. Danilov,
- Project stages
- architectural concept, architectural project, design drawings, architectural supervision
- Design
- 2002 – 2003
- Construction
- 2003 – 2004
- Total object area
- 8 042 m²
- aboveground
- 6 100 m²
- underground
- 19 42 m²
- Construction volume
- 30 337 m³
- Site area
- 0,42 hectares
- Construction area
- 1 075 m²
- Number of floors
- 6
- Number of car places in the underground parking
- 42
- Awards
- ‘Moscow best architectural masterpiece awards 2002-2003’ in ‘Project nomination’. ‘Golden ratio’ 2003 award in ‘Project nominati












