Gleis Süd, Pratteln
Pratteln, Switzerland
Eingeladener Studienauftrag
2020, 1. Preis;
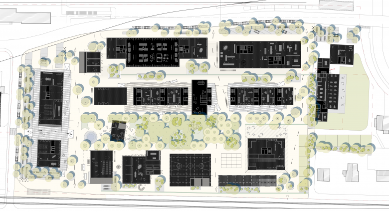
Das vormalige Industrieareal zeichnete sich durch eine räumliche und materielle Heterogenität aus. Über einen langen Zeitraum ist eine Aneinanderreihung verschiedener baulicher Umsetzungen entstanden.
Aus dem Fundus der vorgefundenen, vielfältigen Raumstruktur und Materialisierung werden spezifische Aussenräume entwickelt und so der Bezug zur industriellen Geschichte des Ortes sichtbar gemacht.
Die städtebauliche Setzung strukturiert den Freiraum in die bestimmenden Freiräume.
Der zentrale Park bildet mit seiner grünen Üppigkeit das Zentrum, um das sich das Wohnen konzentriert. Die parallel verlaufende Lange Gasse kontrastiert mit ihrer engen, versetzt angeordneten Raumstruktur und der mehrheitlich mineralischen Ausbildung den grossen, vegetativ geprägten Park. Mietergärten, als mögliche Zwischennutzung und Loggien erweitern das Spektrum an Freiräumen.
Gegen Süden nimmt die Durchlässigkeit der Ost-West verlaufenden Gebäudestruktur zu. Dadurch entsteht ein dichtes Erschliessungsnetz, welches die Durchmischung und den Austausch zwischen den unterschiedlichen Nutzungen und Angeboten fördert.
Die Vegetationsausbildung ist inspiriert durch die, für alte Industrieareale typischen Pflanzengesellschaften und lässt durch abwechslungsreiche Gestaltung eine Vielzahl verschiedener Lebensräume entstehen.
Zur positiven Beeinflussung des Mikroklimas im Wohnumfeld wird die Bodenversiegelung grösstmöglich reduziert und das anfallende Regenwasser wird auf dem Areal zur Verdunstung oder Versickerung gebracht. Der zentrale Park hat durch die ausgedehnten Versickerungszonen mit ihrer üppigen, robusten Vegetation, einem Baumhain und einem Quartier-Spielplatz nicht nur einen hohen ökologischen Nutzen, sondern bietet ebenfalls einen spannenden Natur-Spielplatz für grosse und kleine Kinder.
- Habitatge plurifamiliar
- Uso Mixt
- Retail + Stores
- Cases per a estudiants + Dormitoris
- Arquitectura del Paisatge
- Places
- Estudis Urbans
- Landscape Architects
- Berchtold.Lenzin Landschaftsarchitekten
- Any
- 2021
- Architektur
- Buchner Bründler Architekten
Projectes relacionats
Revista
-
-
-
-
Un despatx madrileny signa un visionari catalitzador urbà en West Palm Beach
Andrea Pala | 29.11.2018 -
L'arquitectura de Francis Keré en escena en el Museu ICO de Madrid
Andrea Pala | 28.10.2018








