Erweiterung Altersheim Heinrichsbad
Herisau, Switzerland
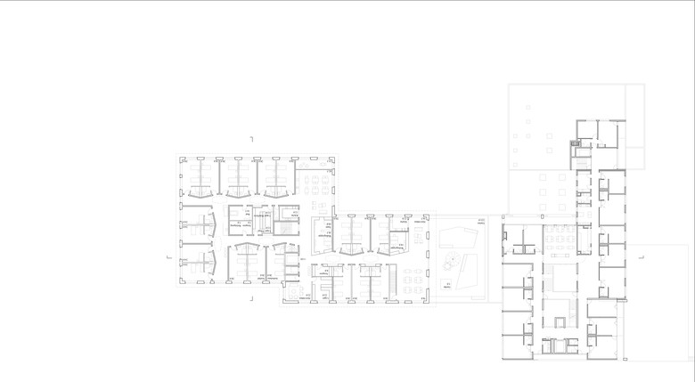
Das Grundstück für den Erweiterungsbau befindet in einer leicht nach Osten abfallenden Talsohle und wird dreiseitig durch Strassen begrenzt.
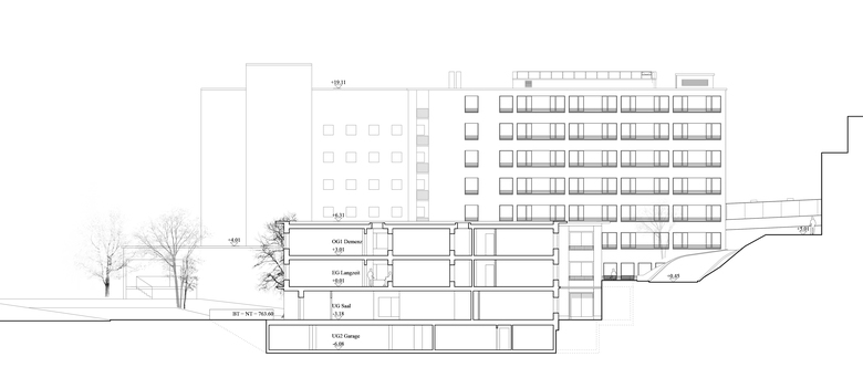
Den Auftakt für das Areal des Altersheims bildet die sich zu den Sportplätzen öffnende Parkanlage im Südwesten. Der Querriegel des bestehenden, dominanten Haupthauses besetzt die Mitte der Anlage. Die projektierte Umrissform ergänzt die Figur mit einem Längsriegel. Der dreigeschossige Baukörper erzeugt zusammen mit der vorgelagerten Parkanlage einen Abschluss des Areals gegen Osten.
Der Haupteingang besteht weiter an der heutigen Position. Vom Nebeneingang im Gartengeschoss des Erweiterungsbaus führt ein Rundweg entlang des freigelegten Baches zu einem Teich durch die neue Parkanlage. Sitzinseln und Bänke laden zum Spazieren und Verweilen ein.
Vom Haupteingang wird die erdgeschossige Langzeitpflege über das Restaurant und die Cafeteria erreicht. Die unmittelbare horizontale Anbindung erlaubt eine optimale Betreuung der Bewohner und effektive Arbeitsvabläufe für das Personal.
Die Demenzabteilung mit zugehörigem Aussengarten befindet sich im 1. Obergeschoss.
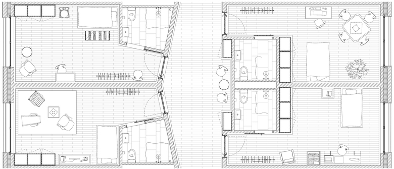
Aufenthaltsbereiche mit Ausblick in die Vorgärten oder Fernblick nach Osten ergänzen das übergeordnete Angebot zum Verweilen. Vier Zimmer teilen sich jeweils eine Korridorausstülpung und eine kleine Sitznische zum Ausruhen.
- Architects
- kathrinsimmen Architekten
- Any
- 2013
Projectes relacionats
Revista
-
-
-
-
Un despatx madrileny signa un visionari catalitzador urbà en West Palm Beach
Andrea Pala | 29.11.2018 -
L'arquitectura de Francis Keré en escena en el Museu ICO de Madrid
Andrea Pala | 28.10.2018









