IBM Headquarter
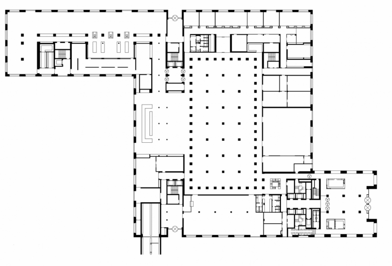
Die IBM als eines der ersten und führenden globalen Unternehmen der Zukunftstechnologien steht für Kreativität und Solidität zugleich. Die Gestaltung des Hauptquartiers für die IBM in Zürich Altstetten soll Innovation und Risikobereitschaft und zugleich Tradition und Verantwortungsbewusstsein architektonisch repräsentieren. Im Sinne eines „Dualismus" von Solidität und Transparenz wird die Fassade aus Naturstein von großformatigen, rahmenlosen Fensterflächen durchbrochen. Ihre Gestaltung im Detail ist radikal vereinfacht, so dass das Gebäude mal als Haus, mal eher als Skulptur erscheint. Ein interner, zentraler Platz, die „Agora", führt die Anlage zusammen und dient als Ort des Austausches und der Begegnung.
Fotografien: Walter Mair, René Dürr
- Any
- 2005
- Client
- Allreal Vulkan AG
- Bauzeit
- 2003–2005
- Bauvolumen
- BGF 40.000 m²
- Verfahren
- Studienauftrag 2000, 1. Preis


