Neuer Empfang Monosuisse AG

Empfang
Fotografia © Lauber Maier Architekten AG

Neuer Empfang für die Monosuisse AG in der Viscosistadt Luzern Nord.

Sitzungszimmer
Fotografia © Lauber Maier Architekten AG
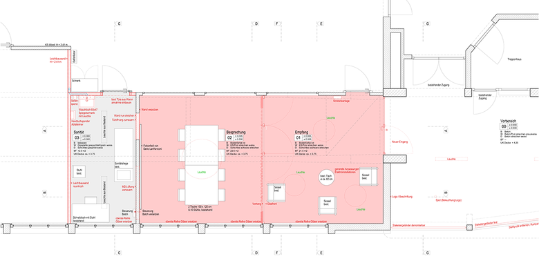
Grundriss
Dibuix © Lauber Maier Architekten AG
Schnitt
Dibuix © Lauber Maier Architekten AG
Leuchte
Fotografia © Lauber Maier Architekten AG
Any
2017
Client
Monosuisse AG

Altres projectes per Lauber Maier Architekten AG / ETH FH SIA 

Umbau Stall Mooshof
Beromünster, Switzerland
Villa Rabenhorst 2. Etappe
Fürigen, Switzerland
Sanierung MFH Schwander
Kriens, Switzerland
Bauprojekt MFH Rankstrasse 3
Ermensee, Switzerland
Anbau und Umbau MFH Biscontin
Luzern, Switzerland