Neubau EFH Wicki

Küche
Fotografia © Lauber Maier Architekten AG
Wohnraum
Fotografia © Lauber Maier Architekten AG
Treppe ins Attikazimmer
Fotografia © Lauber Maier Architekten AG
Attikazimmer
Fotografia © Lauber Maier Architekten AG
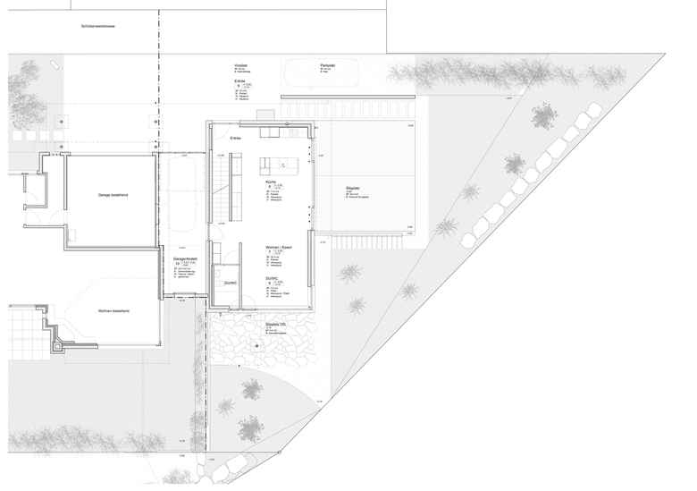
Erdgeschoss
Dibuix © Lauber Maier Architekten AG
Fassaden / Schnitte
Dibuix © Lauber Maier Architekten AG
Bad
Fotografia © Lauber Maier Architekten AG
Wohnraum mit Küche
Fotografia © Lauber Maier Architekten AG
Any
2013
Client
Privat
Equip
Welcome Immobilien AG, Wyss & Partner Ingenieure, RSP Bauphysik

Altres projectes per Lauber Maier Architekten AG / ETH FH SIA 

Umbau Stall Mooshof
Beromünster, Switzerland
Villa Rabenhorst 2. Etappe
Fürigen, Switzerland
Sanierung MFH Schwander
Kriens, Switzerland
Bauprojekt MFH Rankstrasse 3
Ermensee, Switzerland
Anbau und Umbau MFH Biscontin
Luzern, Switzerland