Town House
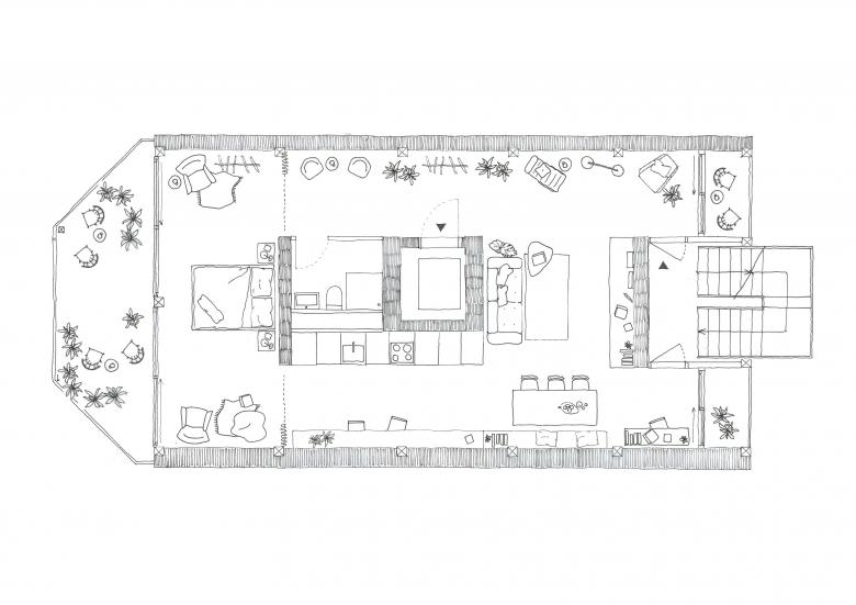
Der Holzbau basiert auf einem rationalen, einfachen und flexiblen System: Ein Infrastrukturkern der ebenfalls in Holz erstellt wird beinhaltet den Lift, das Bad und die Küche mit den Steigzonen. Er ist so positioniert, dass beidseitig, zur Strasse und zum Hof, wohlproportionierte Räume entstehen. Hauptgestaltungsmerkmal ist das Holztragwerk. Zwölf durchgehende Holzstützen tragen das Gebäude. Die Sekundärstruktur bilden Massivholzträger. Auf ihnen liegen die im Wohnraum sichtbaren Holzdecken. Alle Wände und Decken sind aus Holz.
Die Strassenfassade ist durch die markante skulpturale Treppe geprägt. Sie ergibt sich aus dem Baurecht: Ein Drittel der Fassadenlänge darf für über die Baulinie hinausragende Erker oder Balkone genutzt werden. Die Aussentreppe bildet das verbindende Element der Wohnungen des Townhouse untereinander und schafft eine Abstufung zwischen privatem Raum im Inneren und öffentlichem Raum zur Zürcherstrasse und zum Park.
- Any
- 2022


