Scuola Elementare e Palestra

Magliaso, Switzerland
Visualització © Durisch + Nolli Architetti | Flooer
Visualització © Durisch + Nolli Architetti | Flooer
Visualització © Durisch + Nolli Architetti | Flooer
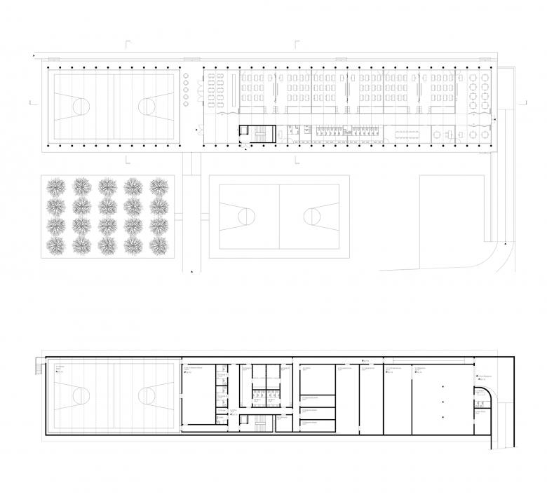
Dibuix © Durisch+Nolli
Dibuix © Durisch+Nolli
Dibuix © Durisch+Nolli
Any
2020
Project Status
Disseny
Client
Comune di Magliaso
Equip
Aldo Nolli, Pia Durisch, Francesco Nozzi, Francesco Parisi
Ingegnere Civile
Lurati Muttoni Partner SA
Architetto Paesaggista
De Molfetta & Strode Landscape Architects

Altres projectes per Durisch + Nolli Architetti 

FHZGR Fachhochschulzentrum Graubünden
Coira, Switzerland
Loft B
Riva San Vitale, Switzerland
Kloster S. Maria Assunta
Claro, Switzerland
Stabile Amministrativo
Lugano, Switzerland
Verwaltungszentrum VBS Bern
Bern, Switzerland