Liceo Cantonale di Bellinzona
Bellinzona, Switzerland
Visualització © Filippo Bolognese
Visualització © Filippo Bolognese
Visualització © Filippo Bolognese
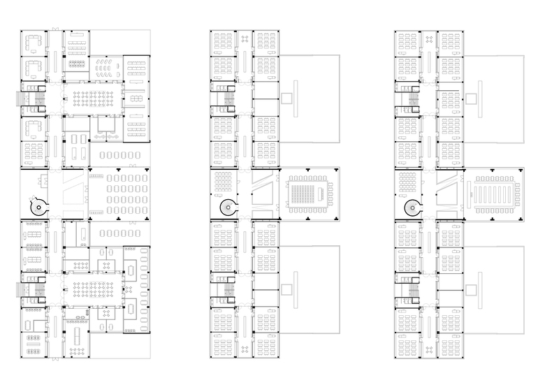
Dibuix © Durisch+Nolli
Dibuix © Durisch+Nolli
Dibuix © Durisch+Nolli
-
Any
-
2018
-
Client
-
Repubblica e Cantone Ticino, Dipartimento delle Finanze e dell'Economia, Divisione delle Risorse, Sezione della Logistica
-
Equip
-
Pia Durisch, Aldo Nolli, Niccolò Nessi, Irene Giovanetti, Ulrike Krommer
-
Bauingenieur
-
Schnetzer Puskas Ingenieure AG
-
HLKS-Planung
-
Tecnoprogetti SA
-
Elektroplanung
-
Erisel SA
-
Bauphysik
-
IFEC ingegneria
Stabile Amministrativo
Lugano, Switzerland
Aiglon College
Chesères-Villars, Switzerland
Wohnungen für Studierende
Luzern, Switzerland
SAMS STA Chiasso
Chiasso, Switzerland
Villa Maraini
Roma, Italy