Centro Federale d'Asilo

Visualització © Onirism
Visualització © Onirism
Visualització © Onirism
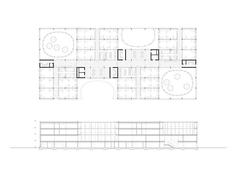
Dibuix © Durisch+Nolli
Dibuix © Durisch+Nolli
Any
2018
Client
Ufficio Federale delle Costruzioni e della Logistica UFCL
Equip
Pia Durisch, Aldo Nolli, Daniel Brigginshaw, Antonino Accardo, Ulrike Krommer, Niccolò Nessi, Irene Giovanetti
Bauingenieur
Schnetzer Puskas Ingenieure AG
HLKS-Planung
IFEC ingegneria SA
Elektroplanung
Scherler SA

Altres projectes per Durisch + Nolli Architetti 

Stabile Amministrativo
Lugano, Switzerland
Aiglon College
Chesères-Villars, Switzerland
Wohnungen für Studierende
Luzern, Switzerland
SAMS STA Chiasso
Chiasso, Switzerland
Villa Maraini
Roma, Italy