Wettbewerb Dückerweg, Steffisburg

Visualització © Architron GmbH
Situation
Grundriss Erdgeschoss
Grundriss Untergeschoss
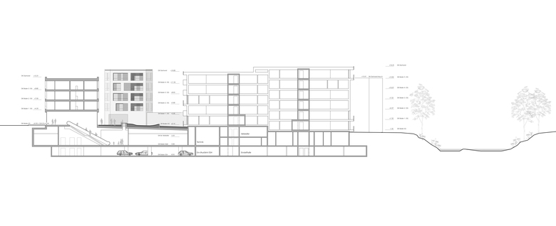
Schnitt
Fassadenschnitt Holzbauten
Fassadenschnitt Massivbauten

Altres projectes per Dällenbach/Ewald Architekten AG 

Projektwettbewerb Neubau Krematorium Thun-Schoren
Renovation Chalet Paradiesli
Merligen, Switzerland
Coop Konolfingen
Konolfingen, Switzerland
Neubau Wohngruppe Stiftung Höchmatt
Schwarzenegg, Switzerland
Studienauftrag Stuckimatte Wohnenplus