Conversion and Extension of Sailer House
SAILER HOUSE
Conversion and Extension of Sailer House
Salzburg, 1997
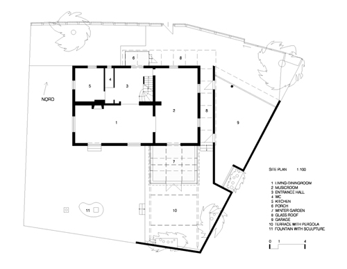
The owners of a Salzburg villa, wanted to add a weather-protected space that could be used all year round and would connect the house with the garden. Our main interest concerned the opening of the house to the south-sided garden. We created a large terrace reaching to the border of the property, on which we placed the garden room of glass and a pergola with tension ropes to provide shadow through plants or textiles. The arrangement of living room (music room), glass house, pergola, terrace, and a garden wall at the side-axis of the building create a chain of interwoven spaces, each closed and protected to a different degree.
As one element in this chain, the garden room of glass was held neutral. The cubic form consists only of a glass protective skin. In such a way, one can really feel the metamorphoses of nature during every time of the day and the year. The light, transparent skin dissolves. This makes the sensations of the Salzburg rain or the mirror-images of the garden seem like magic events. The neutral space gives the users freedom and shifts their perceptions away from banality. The glazed room becomes a space integrator between inside and outside.
A special characteristic of this winter garden lies in its building technology. The glass cube has a “skin” of isolated glass and a glued glass-only construction with only few metal connections. This type of glued only-glass construction represents a technological innovation formerly never applied in Austria (where climatic conditions are often severely harsh).
The reduction of the materials to one, namely glass, and the simple details of the glued structure make the “high-tech” construction appear like a “low-tech” one. It is paradox, that a new technical development, the glass-only construction, helps us to prevent the effect of “technical expressionism.
Awards fort his project:
Landes-Architekturpreis Salzburg (Prize, given from the Regional Government of Salzburg once every 5 years), Austria
DuPont BENEDICTUS AWARD´98, highest world-wide prize for innovative
glass architecture from AIA (American Institute of Architects) Washington, USA,
UIA (International Union of Architects) Paris, France and DuPont
“House of the Year´98”, First Prize of the publishing House Gruner & Jahr, Hamburg, Germany, for converted houses in the German-speaking countries.
“The golden hous´98”, special Prize of magazine ”das haus” and LBK-Bank, Munich, Germany
Press release:
“The minimalism of the design of this glazed living space enables it to integrate fully into its green surroundings. Even the infamous Salzburg rain is here transformed from nuisance to poetic setting...”
Der Standard, 17.01.1998
“This is no classic conservatory, a mere appendage to the main structure, but a structurally and aesthetically minimalist design with the emphasis on functionality. The spatial minimalism of the design which forms the basis of the extraordinary elegance of this glass space placed extreme demands on both the architects and the Austrian glaziers, who entered into this venture with a spirit of experimentation.”
Die Presse, Spectrum, 01.08. 1998
- Any
- 1997







