Der ehemalige Stall ist neu ein Wohnhaus
Fotografia © Ralph Feiner Fotografie, Malans/GR
In der einen Hälfte der Zwillingsstallscheune wird nun gewohnt. Mit einem minimalisierten Einbau bleibt das Erscheinungsbild erhalten. Natursteinmauern und Holzverkleidungen sind soweit als möglich belassen. Der neue Einbau zieht sich ins Innere zurück und die vorgelagerte Loggia zwischen den markanten Eckpfeilern verstärkt das Bild der ehemaligen Stallscheune.
Eingestellt ist ein Einbau aus Beton, ein zweigeschossiger offener Raum. Die Raumathmosphäre wird geprägt durch die Übernahme der ehemaligen Tenn-Struktur, die durchlässige Sicht- und Lichtführung und der speziell entworfenen neuen Beleuchtung.
Gartenzimmer
Fotografia © Ralph Feiner Fotografie, Malans/GR
Wohnzimmer
Fotografia © Ralph Feiner Fotografie, Malans/GR
Eingangsbereich
Fotografia © Ralph Feiner Fotografie, Malans/GR
Küche
Fotografia © Ralph Feiner Fotografie, Malans/GR
Bad OG
Fotografia © Ralph Feiner Fotografie, Malans/GR
Ortbetontreppe UG-EG
Fotografia © Ralph Feiner Fotografie, Malans/GR
Gäste-WC
Fotografia © Ralph Feiner Fotografie, Malans/GR
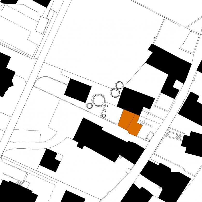
Situation
Dibuix © atelier-f ag, Fläsch/GR
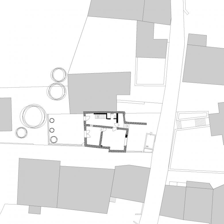
Grundriss Untergeschoss
Dibuix © atelier-f ag, Fläsch/GR
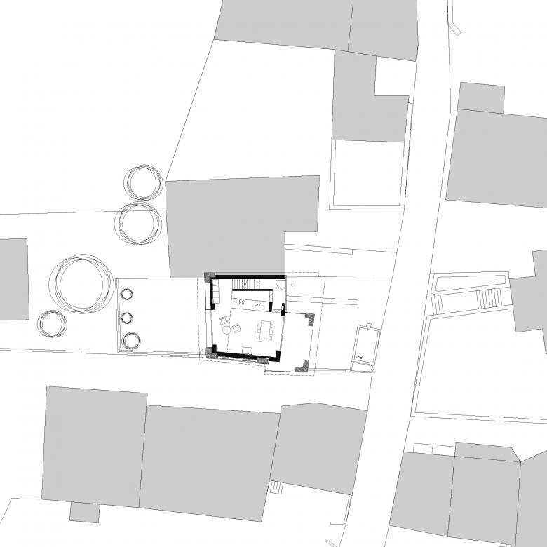
Grundriss Erdgeschoss
Dibuix © atelier-f ag, Fläsch/GR
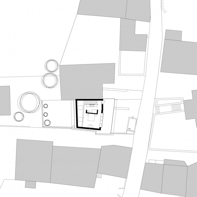
Grundriss Obergeschoss
Dibuix © atelier-f ag, Fläsch/GR