Twelve Houses in Carrer Fernando Poo
Barcelona
Located in the old fabric of Poble Nou, at a transitional point between the historic axis of María Agulló, the Rambla de Poble Nou, and the approaches to the beach, the project responds to this dual condition. On the one hand, Calle Fernando Poo reasserts the traditional typology of the house, two-story housing that makes no secret of its individuality to the street. On the other, the corner, empty but with well-defined arrises that stand out against the sky, looks out at the city of Barcelona with its animated flux of inhabitants and visitors who flow beachwards.
In Calle San Francesc the typological solution insists on the animation of the ground floors as a founding element of the social control of the city. A simple system of entrances avoids elevators and extends the street towards the interior of the houses and communal spaces. The collective constructs the city and organizes through-dwellings on the ground floor and duplex dwellings on the first. The corner is resolved with a T-shaped dwelling that opens onto the inner courtyard and an empty space that proposes a fresh interruption on Calle Fernando Poo. The effect of the corner is thus of benefit to three houses and provides an access space that is colonizable by the inhabitants.
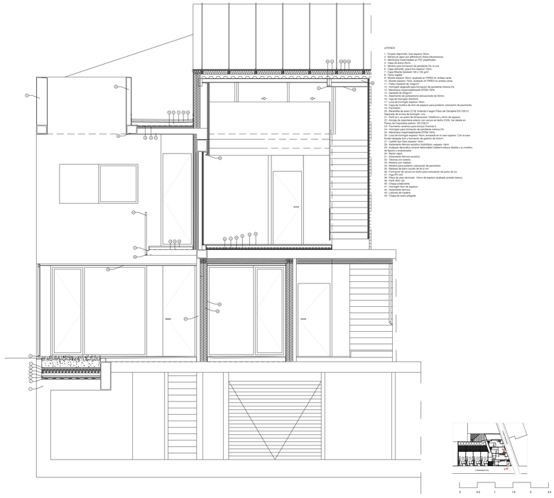
In all of the cases the buffer of the small entrance patios protected with low grill fencing lends density to the line between public and private, and contributes to an energy strategy which thanks to external thermal insulation (ETI) and to aerothermal energy attains maximum efficiency. The window spaces on the first floor exceed their functional condition and acquire the scale of the street by means of large openings and sliding elements. This frontier between the domestic and the vision of the whole is lessened even further in the interior of the intervention, where the layout of the parking area permits the planting of imposing native trees. The excellent orientation of the houses towards sun and sea reveals a small landscaped haven in the midst of the city.
The twelve houses are anchored in the urban tradition of Poble Nou and display this in a small intervention in their ground-floor walls which provides a reminder of names from its history.
[La Granota . Trofeu Mans . La França Xica . El tio Che . Pa amb vi i sucre . l’Alliança . Ateneu Colón . Joncar . Teneria Barcelonesa . Ca l’Aranyó. El Sabre de Plata...]
- 位置
- Fernando Poo, Barcelona
- 年份
- 2018
相关项目
杂志
-
-
-
-
Un despatx madrileny signa un visionari catalitzador urbà en West Palm Beach
Andrea Pala | 29.11.2018 -
L'arquitectura de Francis Keré en escena en el Museu ICO de Madrid
Andrea Pala | 28.10.2018

























