Züricher Straße Nürnberg

Züricher Straße, 90431 Nürnberg, Germany
Picture © MORPHO-LOGIC

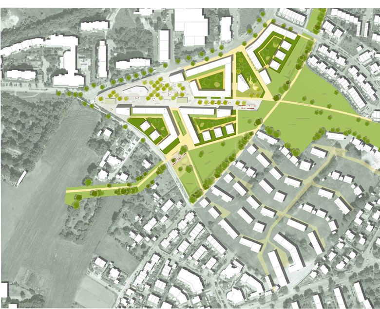
Das städtebauliche Konzept sieht vor, das neue Zentrum durch eine Abfolge von polygonalen Feldern zu definieren, die zwischen sich städtisch geprägte Räume unterschiedlichen Charakters aufspannen. Erstere werden als „solids“, letztere als „voids“ bezeichnet.

Die „solids“ sind an ihren Rändern durch jeweils ähnliche Baukörperstrukturen gefasst, die auf spezifische Randbedingungen reagieren. Pro „solid“ gibt es raumfassende Gebäudeabwicklungen in L- bis U-Form, perforierte Raumfassungen aus punktförmigen Bebauungen und Signethäuser an wichtigen Eckpunkten.

Alle Gebäude der drei Zentrumsfelder erhalten abgesehen von den sog. „perforierten Rändern“ die gleiche Gebäudeschichtung - auch bei unterschiedlichen Höhen.

Soziale Einrichtungen insbesondere in Form von Kindertageseinrichtungen werden zum einen im Haus der Kinder und zum anderen ins Erdgeschoss und 1. OG eines nach Süden orientierten Baukörpers integriert. Die Nähe zum Park bietet ein vielfältiges Spektrum an Spiel und Aufenthaltsmöglichkeiten für die Kinder einerseits, ebenso wie für alle übrigen Bewohner.

Der südlich gelegene Grünzug zwischen Zentrumsbebauung und der geplanten Wohnsiedlung ist Freizeit und Erholungsgelände für den ganzen Stadtteil.

Planungszeit
2013

Bauherr
Stadt Nürnberg, Stadtplanungsamt

Planung
MORPHO-LOGIC
Michael Gebhard, Prof. Ingrid Burgstaller, M.Sc. Dipl.Ing. Architekten BDA Stadtplaner, Partnerschaftsgesellschaft
Mitarbeit: Maria Lopez

Projektpartner
Micheller und Schalk, Landschaftsarchitektur und Urbanismus

Auszeichnung
2013 3.Preis Wettbewerb

Veröffentlichungen
wettbewerbe aktuell 10/2013
competitionline 2013

Picture © MORPHO-LOGIC
Picture © MORPHO-LOGIC
Picture © MORPHO-LOGIC
Picture © MORPHO-LOGIC
Picture © MORPHO-LOGIC
Year
2013

Other Projects by MORPHO-LOGIC Architekten BDA Stadtplaner 

Weltacker Nürnberg
Nürnberg, Germany
Wohnen an der Wolnzach
Wolnzach, Germany
Hochschule Görlitz
Görlitz, Germany
Martinsried Ortsmitte
Martinsried, Planegg, Germany
Bamberger Konversion
Bamberg, Germany